Изготовление арки из гипсокартона своими руками
На выбор того, из чего сделать арку, влияют навыки работы с различными материалами и инструментами, а также особенности интерьера, в котором обустроено помещение. Чаще всего человек, который не имеет особого опыта в изготовлении подобных конструкций, отдает предпочтение гипсокартону.
Процесс по изготовлению арок состоит из нескольких этапов. Для качественного выполнения работы необходимо иметь хотя бы немного опыта, чтобы добиться хорошего результата.
Для изготовления арки из гипсокартона понадобятся следующие материалы и инструменты:
- листы гипсокартона;
- тонкий металлический каркас;
- направляющие; дюпеля;
- ножницы для резки металла;
- саморезы;
- простой либо электрический лобзик;
- обычный карандаш; линейка;
- другие мелкие инструменты для обработки материалов.
Вырезание профиля арки из гипсокартона
Прежде всего, следует определиться с параметрами будущей арки, принимая во внимание высоту потолка в помещении, а также ширину стены. Оптимальный вариант – когда высота арки будет примерно на 30 сантиметров выше роста самого высокого члена семьи. В противном случае люди могут ударяться головой о верхнюю панель
В противном случае люди могут ударяться головой о верхнюю панель.
Нужно взять лист гипсокартона на его поверхности карандашом наносится выбранная форма конструкции которую при необходимости можно исправить
Затем нужно взять лист гипсокартона, характеристики которого отвечают стандартам. На его поверхности карандашом наносится выбранная форма конструкции, которую при необходимости можно исправить. Когда результат будет полностью удовлетворять, то с помощью электрического либо обычного лобзика вырезается форма по контуру. Следует отметить, что если нет опыта работы с электролобзиком, то лучше отдать предпочтение обычному инструменту, чтобы не испортить материал.
После того, как первая половина будет вырезана, карандашом обводятся контуры на другом листе гипсокартона, чтобы в итоге было две одинаковые части – в дальнейшем они будут зафиксированы на заранее подготовленном металлическом профиле.
Сгинаем основание арки из гипсокартона
Следующий этап сооружения данной конструкции заключается в том, чтобы согнуть основание арки. Это требуется для того, чтобы форма арки деформировалась и приняла нужные параметры.
Для выполнения деформирования применяется воздействие весом – на лист гипсокартона давят двумя кирпичами с обоих боков.
Чтобы облегчить процедуру обработки и материал без проблем обрел соответствующую форму, необходимо аккуратно срезать верхний слой гипсокартона, а затем смочить поверхность обычной теплой водой. В конце на верхний лист размещается на уже подготовленные направляющие, и придавить грузом.
Фиксации гипсокартонного листа на металлические профили
Когда конструкция, изготавливаемая из гипсокартона, будет практически готовой, то можно приступать к фиксации гипсокартонного листа на металлические профили. Именно они будут закреплены непосредственно к стене, и только потом на них закрепится гипсокартонный каркас.
Когда конструкция изготавливаемая из гипсокартона будет практически готовой то можно приступать к фиксации гипсокартонного листа на металлические профили
Для начала следует взять высокопрочный лист металлического профиля и с помощью ножниц для металла отметить прорезы в соответствующих местах. Данная процедура требуется для того, чтобы в последствие саморезами зафиксировать гипсокартон. Далее начинается наиболее трудоемкая работа – крепление гипсокартона к уже зафиксированным у стен металлическим направляющим. Для этого используются саморезы подходящих размеров.
В том случае, если не удалось деформировать арку на предварительном этапе, то специалисты рекомендуют для изготовления конструкции использовать отдельные куски гипсокартона, потому что небольшие части гораздо легче поддаются деформированию. После завершения работы необходимо устранить все неровности в области стыков, замазывая их обычной шпаклевкой.
Когда полностью закончатся работы по креплению каркаса к металлическим профилям, то можно приступать к выполнению отделки. Благодаря этому поверхность конструкции получит привлекательный вид. Обычно владельцы жилья поручают специалистам разработку дизайна данного элемента интерьера, чтобы он отлично вписался в общий дизайн помещения.
Как устанавливают арку в дверной проем?
Для арок из различного материала есть свои способы установки. Конструкции из натурального дерева требуют определенных навыков с работой по древесине, гипсокартонные — точности, ровности, поэтапного проведения работы. Из МДФ собирают арочные проемы быстро, самостоятельно, без привлечения мастеров.
Установка скрытым крепежом
https://youtube.com/watch?v=h4hPeoQFJxR8
Данным методом монтируют арку из МДФ. Для этого есть определенная последовательность:
- готовый комплект арки разбирают на детали, соединяют их в правильном порядке и склеивают;
- сначала, делают первую сторону, затем вторую;
- готовую арку из МДФ вставляют в дверной проем, немного поднимают;
- после выравнивания конструкцию фиксируют струбциной;
- торцевые части намазывают клеем;
- остальные части также промазывают клеем и устанавливают по бокам проема.
Производители выпускают готовые комплекты арок, устанавливаемые как мастерами предприятия, так и самостоятельно. Для фиксации элементов комплекта используют «жидкие гвозди», ПВА.
Установка сборной арки обычным способом
Установку межкомнатной готовой арки производят, измерив ширину, толщину, высоту проема. При нестандартных габаритах, собирая верх конструкции, посередине делают вставки. Их монтируют выпирающими «чопиками» в подготовленные отверстия. После подбора нужного размера, половину с декоративной вставкой оставляют отдельно от другой половины — далее, к ним крепят вертикальные вставки.
Две части арки прикладывают к проему, соединяя их посередине вверху. Готовые части арки с одной и другой стороны проема крепят пластиковыми заглушками. Середину конструкции (по толщине) устанавливают, согласно размерам, также фиксируя заглушками.
Виды арок и их дизайн
Наиболее популярные виды арок из гипсокартона
Казалось бы, речь идет о простой дугообразной конструкции, поэтому разговоры о видах и дизайне не имеют смысла. Однако всё как раз наоборот, и существуют различные виды арок из гипсокартона. С ГКЛ очень просто работать, да и металлический профиль хорошо гнется. Поэтому вариаций на тему дверного проема есть огромное множество. Перед тем как сделать арку из гипсокартона своими руками, нужно определиться, какой формы она будет. Рассмотрим наиболее популярные виды данной конструкции.
- Классический вариант предполагает наличие правильной окружности в верхней части конструкции. Если быть точнее, то должна быть именно полуокружность. Чтобы вариант считался классическим, диаметр данной окружности должен составлять ширину дверного проема. Такой вариант отлично смотрится в квартирах с высокими потолками или в больших помещениях. Такие декоративные арки из гипсокартона в прихожей не редкость.
Классика не так часто используется в квартирах из-за их малой площади
- Полуарки очень часто используются в межкомнатных перегородках. Округлый угол у таких конструкций только один. Всё чаще полуарки начинают появляться в современных интерьерах, но крайне редко их создают при ремонте в старых дверных проемах.
Часто полуарки используются как элемент декора
- Межкомнатные арки из гипсокартона в квартире могут иметь форму «эллипса». К данной форме прибегают в тех случаях, когда проем имеет небольшие размеры. Такой вариант смотрится красиво, когда дверной проем по ширине составляет либо 60 см (вместо обычных 80 см), либо, наоборот, является очень широким, как в зале. В обоих случаях эллиптическая форма не выглядит громоздко.
Арки в форме эллипса относят к стилю «Романтика»
- Фигурные арки имеют нестандартную форму. Из профилей могут создаваться самые причудливые арочные конструкции. Чаще всего монтируют фигурные арки из гипсокартона в зал, потому что они должны иметь большие размеры, чтобы можно было воплотить все свои фантазии. Такие конструкции самые сложные в плане создания. Нередко арка в нише из гипсокартона является именно фигурной.
Без помощи профессионала создать фигурные арки практически невозможно
- Портал. Обычно такую конструкцию используют в старых дверных проемах, когда хотят обойтись минимумом усилий, не скрадывая при этом свободное пространство. По сути, для такой конструкции нужно лишь незначительно закруглить углы дверного проема. Иногда закругляются не сами углы, а лишь верхняя часть портала. Такая конструкция максимально приближена по форме к обычному дверному проему. Весьма часто делается такая дверная арка из гипсокартона своими руками на кухне.
Портал представляет собой проем с небольшими закруглениями его углов или верхней части
- Дизайн арки из гипсокартона может быть выполнен в стиле «Модерн». Для проема такого типа характерен резкий переход в месте стыка вертикальной и горизонтальной частей. Также радиус кривизны должен быть не очень большим. Получающаяся конструкция считается вполне обычной и хорошо смотрится, если больше нет вычурных элементов интерьера. Такие проемы в зале смотрятся очень хорошо.
Стиль «Модерн» хорош для широкого и низкого арочного проема
- «Трапеция» – это арка для ленивых. В этой конструкции нет дуг, а только ломанные линии. Значит, её будет намного проще создавать. Такой вариант подойдет для тех, кто так и не решится создавать проемы круглой формы. Монтаж арок из гипсокартона своими руками дело сложное, но в случае с «Трапеций» всё значительно упрощается. Применяется такой вид крайне редко, ведь мало кто видит смысл в том, чтобы из прямоугольного проема делать трапециевидный.
Если сделать углы округлыми никак не выходит, то можно исправить всё на «трапецию»
Как согнуть гипсокартон
Одна важная деталь: стандартный стеновой гипсокартон гнется плохо. Для изогнутых поверхностей специально придумали тонкий — 6 и 6 мм толщины. Эту гнутую часть проще делать из него. При небольшой кривизне такой тонкий лист может изогнуться легко и без ухищрений. Если тонкий ГВЛ покупать нет желания, есть два способа изогнуть стандартный.
Первый — берете игольчатый валик и хорошо прокатываете вырезанный отрезок с одной стороны. Катать нужно с усилием, чтобы разбивался гипс. Потом лист мочат водой и оставляют на два-три часа. После таких процедур он должен неплохо гнуться. Берете его фиксируете с одной стороны, и постепенно прижимая к каркасу арки, изгибаете, прикручивая постепенно по краям саморезами. Способ неплох, вот только при недостатке опыта и недостаточной обработке гипса лист может лопнуть. Придется или потом маскировать щель, или начинать сначала.
Валиком с иголками прокатывают полосу
Второй способ согнуть гипсокартон: с одной стороны делать ножом насечки примерно через каждые 4-5 см. Насечки должны разрезать бумагу. Такую полосу тоже постепенно крепят, ломая по мере необходимости гипс. Он по линиям надреза лопается от легкого нажатия.
Насечки с одной стороны позволяют легко ломать гипс
https://youtube.com/watch?v=S1r2EXhsUg8
Стандартная инструкция по установке
Несмотря на большой выбор материала, самостоятельное изготовление состоит из общих правил и поэтапного оформления. Соблюдая этапы работы, можно избежать ошибок, которые приведут к короткому сроку службы конструкции.
Готовим свод
Для подготовки нужны профили и уровень. Профили фиксируют к основанию дюбелями. Сначала, по обеим сторонам проема монтируют раму, описывающую верх будущей конструкции.
После этого этапа на нужном расстоянии крепят изогнутый в правильную дугу металлический профиль — его боковины надрезают. Между согнутыми профилями на расстоянии 20-25 см фиксируют ребра жесткости.
Установка дуги арки
Дуги арки изготавливают по заранее подготовленному шаблону. Он может быть сделан на фанере или бумаге. Вырезанную из материала дугу с обеих сторон крепят на каркасную основу саморезами.
Мастера для ровности, кроме шаблона, используют другой метод. К подготовленному вырезанному материалу с тыльной стороны крепят изогнутый профиль.
Готовим боковые части
Боковая часть равна расстоянию между дугами. В зависимости от применяемого материала, его изгибают. Для ГКЛ есть 2 метода выгибания листа — сухой и мокрый. Готовую изогнутую панель ставят между дугами в проеме. Деталь имеет размеры, равные своду конструкции.
Монтируем стойку межкомнатной арки
Для гипсокартонной конструкции нужен металлический каркас, на который крепят элементы стойки. Другие материалы крепят на каркасную основу или на клей.
Для изготовления элемента нужное расстояние — от края дуги до низа. Полученную длину отмеряют на материале и отрезают. Потребуется 2 лицевые части и полоса между ними.
Все фиксируемые элементы надо проверять уровнем не только по вертикали, но также ровность между левой и правой частями.
Заключительный момент установки
Последним шагом считают закрытие декоративным молдингом стыковочных мест. Если конструкция из ГКЛ, все стыки армируют, места крепежей закрывают шпатлевкой для стыков. Нужно покрыть конструкцию грунтовкой и финишной шпатлевкой. После высыхания и затирания декорируют (оклеивают, окрашивают).
Арочная конструкция несложная в сборке, если приобрести ее полным комплектом. Однако, она имеет ряд нюансов при самостоятельном монтаже. Ровность арки — это красота, изысканность.
Самостоятельная установка сводчатой арки
И даже более сложную арку со сводами можно воплотить в реальность при домашнем ремонте. Важный момент — просто оформить сводом вершину дверного проема не получится из эстетических соображений. Вам придется увеличивать высоту проема, чтобы проход между комнатами не напоминал давящий со всех сторон пиратский грот. Решите вопрос с расширением стенного проема или снесите стену и поставьте новую гипсокартонную конструкцию
Обратите внимание, что нарушать целостность и каким-либо образом менять несущие стены запрещено

А теперь — пошаговая инструкция, как сделать сводчатую арку в межкомнатной перегородке:
- Вариант с расширением проема. Размечаем границы будущего проема на существующем. К желаемой ширине арки добавьте 4 см по ширине и столько же по высоте. Отметьте засечками на стене. Далее через каждые 10 см надо пробить перфоратором сквозные отверстия в стенке и расширить проем дисковой пилой. Потом организуем основание для боковых панелей из гипсокартона или ДСП с монтажом на П-профиль. Как делается свод, вы увидите в отдельном разделе.
- Вариант с межкомнатной аркой из гипсокартона на новой стене. Перед установкой новой гипсокартонной стены нанесите вертикальную разметку с помощью отвеса на несущую стену, к которой будет примыкать конструкция. Возьмите обрезок профиля и перенесите разметку на противоположную стену. Установите и зафиксируйте дюбелями П-образный профиль ЦД по разметке. От боковин с двух сторон отложите на полу отрезки профиля, равные ширине гипсокартонной стенки до арочного проема, прикрутите эти элементы. Профиль по потолку займет всю ширину стены. Далее ведем две рейки от потолочного профиля и соединяем с концами отрезков на полу, чтобы получилось основание боковых арочных панелей. На раму монтируем поперечины с шагом 20 см, что способствует устойчивому положению ГКЛ (гипсокартонных листов), которые мы уложим на этот каркас. И на последнем этапе мы будем делать свод для арки.

Разметка с составлением плана
Первым делом нужно разметить помещение, чтобы понимать насколько гармонично впишется перегородка с аркой в интерьер помещения.
Кроме этого, нужно вычислить точную квадратуру отгороженного помещения – это важно, может не хватить буквально одного сантиметра, чтобы поставить определенную мебель. Смотрите в видео: как сделать арку из гипсокартона. Смотрите в видео: как сделать арку из гипсокартона
Смотрите в видео: как сделать арку из гипсокартона.
Далее нужно нарисовать план на бумаге. В будущем, как только вы самостоятельно соберете первую перегородку из ГКЛ, вам это может и не понадобиться и вы сможете помогать своим близким, перепланировать квартиру перегородками из гипсокартона.
На плане должны быть обозначены все размеры очень точно, так вы будете визуально представлять, что у вас получится в итоге.
Размеры создаваемой арки
Начало монтажа
Для того чтобы вы знали с чего начинать монтаж конструкции своими руками, прочтите несколько рекомендаций описанных ниже:
- План создан, теперь нужно определить, где будет находиться арочный проем. Не забывайте, что он не должен быть слишком узким, так как вам нужно будет заносить мебель в комнату.
- – с этим параметром тоже нужно определиться сразу. Если ваша перегородка будет носить чисто декоративный характер, то укладка изолирующего материала необязательно. А если конструкция, которую предполагается обустроить, будет перегородкой между комнатами, то звукоизолировать ее обязательно.
Звукоизоляция
Материал – нужно высчитать точное количество для монтажа. Профиль и гипсокартон, можно рассчитать очень точно и не покупать лишнего. Количество нужно купить с запасом. Как только вы произведете расчеты, станет понятно, во сколько вам обойдется перегородка из ГКЛ.
Можно переходить ко второму этапу проведения работ.
Монтаж каркаса
Подготовили материал и необходимый – можно приступать к самому ответственному процессу, монтажу скелета будущей перегородки своими руками:
- Начинается монтаж с профилей. Если перегородка декоративная, то достаточно взять и 27х28-стартовый. Применение этого профиля сделает декоративную конструкцию воздушной, так как толщина перегородки будет всего 4 см. Предполагаете использовать звукоизоляцию – профиль направляющий берется 40х75, это оптимальный размер, для укладки изоляционного материала внутрь перегородки. Стартовый профиль покупается по размеру.
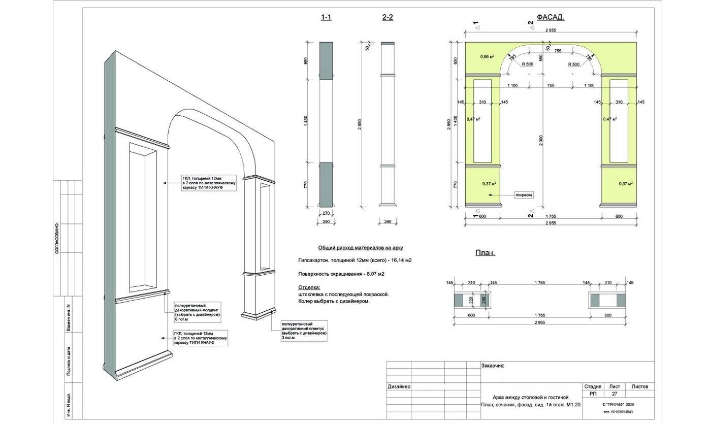
Арка из гипсокартона
Как сделать арку из гипсокартона своими руками? В этом нет ничего сложного. Этот материал в чем-то напоминает фанеру, но работать с ним легче и он существенно дешевле.
Отлично, когда удается соединить в себе сразу несколько строительных работ: возведение стен и создание арки из гипсокартона. Тогда можно провести монтаж с наименьшими отделочными работами.
Существует два способа использования гипсокартона, но все начинается с подготовительных работ:
- Нужно добиться, чтобы участок работы был освобожден от всего ненужного (дверные коробки, наличники, декоративные элементы).
- Если есть трещины, сколы, то их заделывают. Да, конструкция арки все скроет, но лучше избежать неприятных последствий.
- Подготавливается необходимый инструмент.
- Создается предварительный проект.
Способ первый – на металлическом каркасе
Это очень быстрый и довольно популярный способ, который позволяет сделать арку из гипсокартона в своем доме или квартире.
Берутся два листа ГКЛ, если позволяет размер, то распиливают один пополам.
В дверном проеме формируют П-образную раму из металлического профиля. Она должна быть с обеих сторон.
Один отрезок закрепляют на раму. Его предварительно разделяют пополам и намечают середину.
Берется рейка, в ней просверливают отверстие – с краю и посредине. Промежуток между ними должен равняться – середине дуги возводимой арки. Для этого определяют, какое расстояние будет между двумя концами полукруга.
С помощью получившегося «инструмента» — чертят кривую линию. Делается это так: совмещают отверстие середины рейки и центра отрезка ГКЛ, закрепленного на каркасе. Сразу проверяется, подходит ли высота проема. В крайнее отверстие этого приспособления вставляют гвоздик, проводится дугообразная кривая (вместо рейки можно использовать простую веревку).
ГКЛ снимают и отрезают ненужное. Теперь его можно закрепить на каркас.
С противоположной стороны устанавливают второй лист гипсокартона. При помощи угольника, используя первый отрезок как трафарет, переносят размер дуги. Процедуру по выпиливанию и закреплению – повторяют.
Получается пустое пространство. В него устанавливают каркас. Для этого профиль надрезают и гнут. Такое изделие прикручивают к стойкам и к листам ГКЛ. Дополнительно устанавливают перемычки.
Вырезают полосу – равную необходимой дуге. Гнут. Для этого с изнаночной стороны делают глубокие надрезы
Прикручивают осторожно, без быстрых движений.
Можно считать, что арка уже готова. Осталось отделать ее и покрыть краской.
По похожему принципу делается и деревянный каркас
Только там большее внимание нужно уделять перемычкам, на которые и будут крепить дугу
Чтобы лучше понять, как сделать межкомнатную арку из гипсокартона, посмотрите это видео:
Второй способ – наборной
Более сложный вариант. Принцип таков:
- От угла проема, с двух сторон, начинают закреплять отрезки ГКЛ. Для этого смешивают ПВА и воду.
- Каждый следующий кусок – меньше предыдущего.
- Итак, пока не будет закреплен самый маленький отрезок.
- Дополнительно их укрепляют саморезами, анкерами.
Наборной способ создания арки из гипсокартона
Наступает самое трудное. А именно – с помощью шпаклевочной смеси формируют плавную дугу. Это не так просто, лучше заранее подготовить шаблоны.
Как видно, способов существует много, можно использовать разные материалы и технологии. Не каждый из них подойдет для работы, которую можно сделать собственноручно. Но если есть желание, то соблюдение определенных правил позволит создать великолепную конструкцию.
Где лучше всего устанавливать арки?
Арка делает помещение светлее. Это происходит из-за отсутствия дверей, которые даже в открытом положении занимают место. Если комнаты, между которыми есть проход, темные, арку делают с подсветкой из точечных светильников или светодиодной ленты.
Проход в дизайнерском стиле оформляют:
- Между коридором и гостиной. Арка имеет стандартные размеры дверного проема или широкая — оформлена в стиле, подчеркивающем интерьер помещения.
- Между коридором или гостиной и кухней. Конструкцию монтируют с подсветкой, которая играет роль дополнительного освещения в вечернее время.
- Арка в квартире-студии. Комната, где размещены все функциональные места, отсоединяется от кухни барной стойкой и арочным проходом.
- Частный загородный дом. Здесь арочные проходы ставят не только из гостиной в кухню, но и между комнатами.
- Декоративная арка. Устанавливают для подчеркивания дизайна. Это ниша, оформленная арочной формой, небольшое разграничение пространства на зоны в одной комнате. А также монтируют полуарки, которые, с одной стороны имеют вертикальную колонну, а вверху соединяются с потолком в единое полотно.
Материалы для работы
Строить арку просто так нельзя, нужно выбрать материал и подготовить весь инвентарь. Чаще используется гипсокартонный лист, он простой в работе, по желанию можно переделать арку, стоимость его низкая. Поэтому ниже будет поэтапно описан пример работы с ГКЛ. Арочный межкомнатный проем требует:
- ГКЛ 9,5 мм.
- Профили 27х28 мм и 60х27 мм.
- Саморезы, чтобы крепить гипсокартон 3,5х25 мм.
- Дюбеля, чтобы закрепить каркас в проеме 6х60 мм. Используются, для кирпича или бетона.
- Саморезы с пресс-шайбой 4,2х12 мм.
- Если дверной проем из бруса, то нужны саморезы по дереву.
- Шпаклевки для ГКЛ.
- Игольчатый валик.
- Перфорированные уголки.
- Шпателя.
- Карандаш и рулетка, чтобы померить и сделать чертёж.
- Шуруповерт.
- Нож.
Подготовив материал, нужно все разметить и замерить.
Изготовление декоративной арки из пенопласта своими руками:
Использование арки в интерьере – это выход для малогабаритных квартир, в которых пространство и без того ограничено. Незаменимы они в случае, когда распашная или раздвижная дверь не подходит или доставляет слишком много неудобств.
Арочные конструкции из пенопласта имеют ряд преимуществ перед классическими дверями:
- визуально увеличивают пространство;
- делают помещение светлым и легким;
- скрывают недочеты проемов;
- стоят меньше, чем дверные конструкции;
- сделать их можно разными способами;
- широкий спектр вариантов оформления.
Создать арку можно в любом проеме, а благодаря разнообразию методик сделать это может даже человек, у которого ранее не было подобного опыта. Ценовой диапазон на материалы позволяет подобрать подходящий по финансам вариант арки.
Пример готовой арки из пенопласта с декоративными элементами
Арку из пенопласта можно задекорировать любым способом, тем самым органично вписав в интерьер помещения. Рынок предлагает немало материалов, с помощью которых можно оформить арку в стене.
Как устанавливают арку в дверной проем?
Для арок из различного материала есть свои способы установки. Конструкции из натурального дерева требуют определенных навыков с работой по древесине, гипсокартонные — точности, ровности, поэтапного проведения работы. Из МДФ собирают арочные проемы быстро, самостоятельно, без привлечения мастеров.
Установка скрытым крепежом
Данным методом монтируют арку из МДФ. Для этого есть определенная последовательность:
- готовый комплект арки разбирают на детали, соединяют их в правильном порядке и склеивают;
- сначала, делают первую сторону, затем вторую;
- готовую арку из МДФ вставляют в дверной проем, немного поднимают;
- после выравнивания конструкцию фиксируют струбциной;
- торцевые части намазывают клеем;
- остальные части также промазывают клеем и устанавливают по бокам проема.
Производители выпускают готовые комплекты арок, устанавливаемые как мастерами предприятия, так и самостоятельно. Для фиксации элементов комплекта используют «жидкие гвозди», ПВА.
Установка сборной арки обычным способом
Установку межкомнатной готовой арки производят, измерив ширину, толщину, высоту проема. При нестандартных габаритах, собирая верх конструкции, посередине делают вставки. Их монтируют выпирающими «чопиками» в подготовленные отверстия. После подбора нужного размера, половину с декоративной вставкой оставляют отдельно от другой половины — далее, к ним крепят вертикальные вставки.
Две части арки прикладывают к проему, соединяя их посередине вверху. Готовые части арки с одной и другой стороны проема крепят пластиковыми заглушками. Середину конструкции (по толщине) устанавливают, согласно размерам, также фиксируя заглушками.
Монтажные работы
Сначала осуществляется устройство каркаса. Этапы выполнения этой работы своими руками:
- Отрезаем два отрезка профиля по высоте проема и один по ширине и закрепляем их в проеме, использую дюбеля с винтами.
- Теперь нужно приготовить дугообразную часть каркаса. Длина профиля для этой части определяется путем складывания двух величин – радиуса арки и высотой отступа от верхней части проема.
- Чтобы появилась возможность изогнуть профиль, нужно ножницами по металлу или болгаркой произвести надрезы в параллельных боковых частях профиля. Шаг расположения надрезов 4-8 см. После этого профиль изгибают, придавая ему необходимую форму.
- Закрепляем изготовленную часть каркаса, предварительно выровняв его.
- Готовый каркас обшиваем заготовками из гипсокартона. Сначала обшиваются фронтонные части, выкроив детали по размерам проема. Затем изготавливается внутренняя часть арки. Чтобы изогнуть заготовку из гипсокартона своими руками, необходимо с изнаночной стороны выполнить надрезы, не повреждая наружный слой. Подготовленную деталь из гипсокартона необходимо установить, закрепив на каркасе при помощи саморезов.

Выбор конструкции и расчет
Межкомнатная арка своими руками из гипсокартона не требует сложных расчетов, но предварительные вычисления все же нужны: требуется определить необходимое количество ГКЛ, профиля (или деревянного бруска), крепежа, выбрать саму форму.
Начальные данные для вычислений – размер существующего проема. Если планируется воздвигать перегородку из гипсокартона, как описано в статье, ограничителем будет желаемый размер, а не уже имеющийся в капитальной стене. В зависимости от того, как именно будет возводиться арка, рассмотрим два варианта действий.
Отделка существующего проема в капитальной стене (панели, кирпич, блоки)
Планировка дома может предполагать несколько вариантов ширины и высоты проема. Ниже приведены три типа классических арок для разных габаритов.

При этом следует соблюдать допустимое расстояние от верхней точки арки до уровня чистового потолка.

Уменьшение этого расстояния допустимо только в легких каркасных конструкциях и только с распределенной опорой перекрытия на каркас. В противном случае нагрузка от перекрытия на несущую стену окажется чрезмерной, может произойти провисание потолочной плиты или балок, разрушения участка стены или перекрытия.
В зависимости от существующих размеров проема и допустимого уменьшения расстояния от его верхней точки до потолка выбирается полуциркульная (справа) или лучковая (слева) форма дуги. Учитывается также возможность изгиба гипсокартонных листов (только в продольном направлении), для обычных панелей допустим изгиб с радиусом 300…1000 мм и более, на радиус сгиба влияет толщина листа. Чем тоньше лист, тем больше возможность изогнуть его желаемым образом.

После того, как размер арки и проема установлены, выполняется эскизный набросок будущей конструкции с указанием положения стоек и распорок каркаса, габаритами листов гипсокартона и размещением крепежа.

Сделать проем-арку своими руками можно без использования арочного профиля, применяя обычный с надсечками.
При расчете следует учитывать наличие или отсутствие боковых профилей, укрепляющих проем с обоих сторон и, соответственно, количество листов. Таким образом, для полуциркульной конструкции с усилением проема до самого низа с обеих сторон потребуется при начальном размере проема 900х2000 мм:
- прямые стойки (профиль угловой ПУ31/31 или стоечный ПС50/50) – 2000х4+900х2=9800 мм (округляем до 2 м);
- профиль радиусный (арочный) CD60 по длине арки с небольшим запасом – πх450х2=2 826 мм, округляем до 3 м. Вместо арочного можно использовать ПС50/50 той же длины, надсекая его боковые планки с шагом 30…50 мм;
- листы гипсокартона (для ширины стены в месте проема 250 мм) – 3 000х250 мм для арочной части (лучше специальную разновидность ГКЛ с продольными пазами), раскрой только в продольном направлении, и две планки длиной 2 000-450 = 1 550 мм с шириной 250 мм;
- также необходимо два (или четыре, в зависимости от конструкции) прямых подвеса для крепления арочного профиля или соответствующее количество соединительных элементов;
- дюбели для фиксации профиля к дверному проему, саморезы для крепления ГКЛ к профилю.
Создание перегородки с арочным проемом
Сделать дверную арку своими руками можно с не меньшим успехом в заново возводимой перегородке из ГКЛ. Чертеж такой конструкции представлен ниже.

Как видно из чертежа, кривая арочного проема достаточно сложна, имеет несколько сопряженных радиусных дуг, дополнительно конструкция имеет три прямоугольных небольших проема. Схема армирования перегородки основана на использовании нескольких вертикальных стоек полной длины и большого количества скрепляющих перемычек, а также арочного профиля. Общее количество необходимых материалов здесь посчитать сложнее, причем необходимо учитывать запас не менее 10…15% на случай непредвиденных сложностей при раскрое профиля и ГКЛ. Укрупненно расчет делается на основании данных чертежа:
- профиль ПС 75х40 мм – ((5х2 700)+(6х200)+3 200+500+790+450+(2х220)+130+600)х2=41 620 мм, округляем с учетом требуемого запаса до 50 м;
- арочный профиль 5 500х2 = 11 000 мм, 11 м (допустима замена ПС 50х50 мм);
- ГКЛ – две панели 3 200х2700 (на всю площадь перегородки 8,64 кв.м.). С учетом стандартного размера 1 200х2 500 мм (площадь листа 3 кв.м.) потребуется не менее трех листов;
- ГКЛ с продольными пазами или обычный – пластина с общим размером 5 500х200 мм (здесь 200 мм – толщина перегородки);
- соединительные элементы, дюбели, саморезы.
Виды арок
Формы арочных конструкций не изобилуют излишней вариативностью. Все они, как правило, похожи друг на друга. Наиболее часто встречаются следующие:
- Классическая. Это всем привычная арка в виде правильной дуги.
- В стиле «модерн». Отличается слегка приподнятой или полным отсутствием верхней части.
- В романтическом стиле. Арка имеет прямоугольную форму с закругленными углами.
- Эллипсоидная. Верхняя часть или дуга имеет форму эллипса.
- Произвольная. Оформление свода может иметь любой профиль. Все зависит от дизайнерской задумки.
Что касается стилистики, то все зависит от доступных габаритов. В очень большой проем можно вставить арку любой формы. В широкий хорошо подойдут арки с закругленными сводами, а в высокий проем – в стилях модерн или классика.
Монтаж каркаса из дерева
Древесноволокнистый каркас сделать для арки довольно просто, но в данном случае нужно будет использовать не металлопрофиль, а брус и фанеру. Инструкция будет следующей:
- Вымеряется ширина проема, после чего отнимается толщина ГКЛ, фанеры и можно будет получить необходимый размер для бруса.
- Далее, надо нарисовать на фанере нужный угол арки и используя подручный инструмент, в идеале лобзик, выпилить часть.
- После этого саморезами фиксируется к фанере брус, который и будет служить каркасом и проводится монтаж в проем.
- Далее, фанерный каркас устанавливается со второй стороны проема и проводится обшивание гипсокартоном.
Проем получается надежный и не хуже чем из металлического профиля.





































