Проект дома 7 на 7

Дома своими руками можно создавать любых размеров. Однако, нужно ориентироваться на ваши потребности и знать основные виды проектов. В этом разделе мы рассмотрим планировку двухэтажного здания величиной 7 на 7 метров. Стоит отметить, что такие габариты оптимально возводить, если в семье 4 человек, из которых 2 взрослых и 2 детей. В такой технологии строительства первый этаж предназначается для совместного отдыха или приезда гостей. На практике в таких проектах присутствует кухня, столовая, гостиная, прихожая, гардероб и санузел.
Данный коттедж имеет два крыльца, одно из которых является главным входом в постройку, второе расположено в гостиной комнате. Такая планировка имеет ряд преимуществ:
- Вы сможете создавать на дворе закрытое от лишних глаз место для отдыха всего семейства.
- У вас будет дополнительный выход, например, это вас выручит, если сломается дверной замок.
- Так же можно создать мини сад, детский комплекс, теннисный корт.
Вот мы и ознакомились с особенностями дома с двумя этажами. Также, было рассказано о двух небольших проектах коттедже. Но, стоит отметить, что их на самом деле очень много. Так, что выбирайте подходящий план для вашего участка и соответствующего вашим возможностям.
Схема планировки 2-этажного дома жилой площадью до 50 кв. м. с двумя спальнями на втором этаже. В современном строительстве большой популярностью пользуется планировка небольшого двухэтажного дома. Именно такие строения помогут создать наиболее оптимальное зонирование всей площади: внизу будут располагаться хозяйственные комнаты, кухня и столовая. Наверху место будет отведено исключительно для личных апартаментов, например, спальных или детских комнат, предназначенных для членов семьи.
Часто проекты подобных домов рассматриваются как , чтобы проживать в нем только в теплое время года.
Первый этаж будет площадью до 50 кв. м. Перед самым входом расположено небольшое крыльцо, затем вход в тамбур (2,8 кв. м.). Практически каждый качественно построенный дом имеет это небольшое помещение в виде тамбура. Оно необходимо для того, чтобы тепло из дома не выходило на улицу. Этот буфер может служить и для хозяйственных целей, к примеру, там можно расположить небольшую стойку для обуви, или даже маленький шкаф для верхней одежды. Освещения в тамбуре можно использовать по минимуму, достаточно небольшой лампочки.
Далее,дверь ведет в прихожую, площадь которой составляет 4,8 кв. м. Издавна это место было самым первым помещением, по которому и определяют стиль, царящий во всем доме
По этой причине планировке этого места стоит уделить свое внимание
План предусматривает, что прихожая в этом доме будет оснащена необычной подсветкой, которая и будет привлекать к себе внимание каждого. Подсветка устанавливается по периметру потолка, причем цвет освещения можно выбирать самостоятельно
В ночное время можно не выключать его, а просто приглушать свет. Таким образом, если в семье есть маленькие дети им не будет страшно в ночное время. Особое внимание следует уделить и входному проему в .
Размер этого помещения составляет 10, 1 кв. м., такого пространства будет вполне достаточно для расположения двух зон. Та, в которой готовят пищу, будет находиться ближе к выходу, другая зона приема пищи — ближе к окну. Окно будет располагаться на лицевой стороне здания, которая обращена на северо-запад.
Необходимо позаботиться о хорошей вентиляционной системе
Немногие уделяют этому особое внимание, однако, в некоторых ситуациях хорошее проветривание просто необходимо. В этом пространстве располагаются два окна, то есть по одному в каждой зоне
Окна будут стандартного размера, чтобы в дневное время не приходилось прибегать к искусственному освещению. Такая схема может использоваться для каждого помещения.
Достоинства двухэтажных домов
Строительство комфортного двухэтажного дома сегодня не так затратно, как полагают большинство потребителей. Конечно же, такой выбор обойдется не дешевле одноэтажного строения, но он того стоит. Выбрать можно уже готовый проект дома 2 этажа с планировкой или составить индивидуальный. Профессиональные архитекторы и дизайнеры с удовольствием помогут вам воплотить мечты о загородном двухэтажном доме в реальность, предложат актуальные и соответствующие вашему бюджету решения.
План современного двухэтажного домаИсточник bawim.desany.ru.net
Основные преимущества загородного двухэтажного дома:
Рациональное использование земельного участка. Если вам достался совсем небольшой земельный надел в черте города или за ее пределами, естественно, вы захотите обустроить его с максимальной пользой, чтобы работал каждый квадратный метр. Зачем занимать ценную полезную площадь приземистым одноэтажным домом? Лучше распределить те же помещения на двух этажах, а на участке оборудовать сад и зону отдыха с беседкой и мангалом.
Высокий уровень комфорта. Два этажа позволяют очень четко зонировать помещения, в которых спят и отдыхают, от так называемых общих и рабочих комнат. Традиционно спальни и кабинеты размещаются на втором этаже, а гостиная, столовая, кухня, игровая – на первом. Таким образом, в одном доме смогут со всеми удобствами жить несколько поколений семьи с разными распорядками дня и интересами.
План просторного двухэтажного домаИсточник derevyannyydom.com
Надежная и простая конструкция. Некоторые решают сэкономить на проекте двухэтажного дома и подыскивают альтернативный вариант с мансардой. На самом деле это вовсе не дешевле, а иногда даже дороже. Ведь правильно спроектировать и выстроить конструкции со скошенной кровлей, грамотно подвести все коммуникации на мансарду, утеплить ее, сделать комфортной и безопасной для проживания в действительности намного хлопотнее, чем проделать все те же работы при проектировании дома в полноценных два этажа. Если вам нужны дополнительные полезные метры жилплощади, имеет смысл сразу же выбирать двухэтажный дом, а не постройку с мансардой.
Итак, красивые двухэтажные дома – это идеальный баланс между полезной площадью и затратами на создание проекта и строительство, эстетичность и комфорт, необходимое личное пространство для каждого из членов семьи, но без излишеств. Обеспечить такие характеристики вполне возможно – если проект разрабатывается специалистами, которые прекрасно осведомлены обо всех тонкостях строительного процесса.
План большого двухэтажного дома с открытой террасойИсточник cottages.nsk.ru
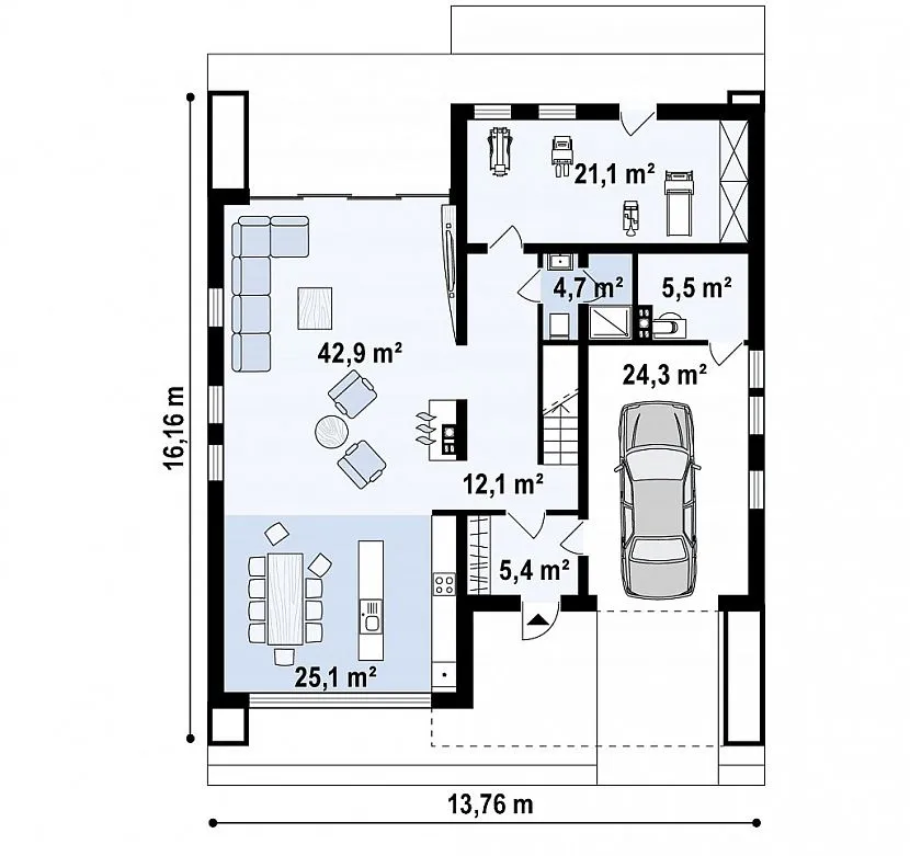
План двухэтажного дома с гаражом
Это еще одна категория современных проектов домов на загородных участках. При возведении подобных строений чаще всего используются блоки из бетона и кирпич. Если при строительстве используется дерево, скорее всего, потребуется отделка фасада и наружной поверхности стен. Ведь стеновые панели должны гармонировать с пристройкой в виде гаражного помещения.

При планировании важно учесть, чтобы кровля гаража и навес для автомобиля органично смотрелись с крышей основного жилого строения. Главное проследить, чтобы они были сделаны из одного материала и имели одинаковую линию наклона, как на цифровом фото

Этап четвертый. Ландшафтный дизайн
Еще лет двадцать назад насчет ландшафтного дизайна ходили споры, но сегодня достоверно известно, что его проектировка крайне нужна и важна. И вот почему:
Соседская дружба
- Профессиональный ландшафтный дизайн позволяет обеспечить правильную инсоляцию, что в свою очередь дает возможность создать комфортные условия во всех жилых помещениях дома; ландшафтный дизайн это не только кусты и деревья с каменными садиками, это еще и грамотная прокладка всех инженерных коммуникаций;
- При проектировании ландшафта, вы заранее можете учесть такие моменты, как дренаж, расположение подпорных конструкций, транспортных площадок и зон отдыха;
- Если на участке уже присутствуют зеленые насаждения, то заранее позаботьтесь о том, чтобы на время строительных работ они были защищены оградами и пленкой.
Особенности планировки двух- трехэтажного частного дома
Рис.2. План первого этажа
двухэтажного дома: 3 — санузел с душем 3,9м 2
; 4 — кабинет (гостевая спальня) 11,8м 2
; 7 — кладовая 2,7м 2
; 8 — котельная 6,6м 2
; 10 — терраса 43,6м 2
;
Рис.3. План второго этажа
двухэтажного дома: 13 — гардеробная 3,5м 2
; 14 — санузел с ванной 5,9м 2
; 18 — санузел с кабиной бани-сауны 8,5м 2
; 19 — прачечная 4,6м 2
;
В двух- трехэтажных домах естественной границей между дневной и вечерней зонами удобно сделать лестницу, поз.11 на рис.3. Помещения дневной зоны, как правило, располагают на первом этаже, рис.2. Спальни, гардеробные, санузлы ночной зоны размещают на верхних этажах дома, рис.3.
Правда, такое разделение помещений по этажам не всегда удобно и возможно. Нередко на первом этаже приходится делать еще одну спальню, поз.4 на рис.2. На нижнем этаже обычно располагают спальню для пожилых родителей или для гостей.
В многоэтажном доме, как в большом канале вентиляции, существует естественная тяга, под действием которой воздух с первого этажа устремляется вверх по просвету лестницы на верхние этажи и мансарду.
Вариант планировки с входной дверью на этаж, обеспечивает наиболее эффективную работу и простое устройство естественной вентиляции мансарды и верхних этажей дома.
Санузлы в доме
В многоэтажном доме санузлы должны быть на каждом этаже
.
На первом этаже санузел располагают так, чтобы им удобно было пользоваться гостям. Лучше, если вход в гостевой санузел не виден из гостиной.
Если в доме на первом этаже делают спальню, то санузел следует располагать рядом с ней, так, чтобы из спальни в санузел не требовалось ходить через гостиную мимо гостей. Этим же санузлом могут пользоваться и гости.
В большом санузле в зоне спален, поз.18 на рис.3, удобно поместить оборудование для СПА процедур — например, ванную с гидромассажем или кабинку паровой бани-сауны.
Хозяйственные помещения
Котельную обычно предусматривают на первом этаже дома. Часто для размещения котла выделяют помещение в пристроенном к дому гараже. В котельную на твердом топливе обязательно делают вход снаружи, со стороны склада с топливом.
Кладовую для продуктов естественно разместить возле кухни.
В доме удобно иметь две гардеробные — у входа в дом и в зоне спален.
Вблизи гардеробной в зоне спален, там, где хранят белье и ежедневную одежду удобно иметь стиральную машину, сушилку и гладильную доску, поз. 19 на рис.3.
Не следует размещать прачечную в гараже. Постоянная необходимость носить белье далеко, да еще и по лестницам, не понравится хозяйке дома.
Окна в доме

Большая площадь остекления в помещении увеличивает затраты на строительство и эксплуатацию дома:
- Стоимость сооружения блока с остеклением выше, чем затраты на строительство стены такой же площади.
- Увеличиваются расходы на отопление зимой и на кондиционирование летом.
Но многие хозяева решают поступиться экономической выгодой ради гаммы чувств, которые испытывают в уютной гостиной залитой светом с чудесным видом в сад через большие окна от пола до потолка.
Часто большие окна и стеклянные двери для выхода в сад, на террасу или балкон устраивают не только из гостиной, но и из спален, кухни.
Прислушайтесь к своим ощущениям и к мнению домочадцев, где бы они хотели иметь такие окна. При выборе учитывайте также климат и вид из окна.
Если при входе в дом, комнату или в коридор взгляд упирается в окно на противоположной стене, а за ним виден сад, то помещения кажутся просторнее и производят хорошее впечатление.
С наружной стороны на окна частного дома рекомендуется устанавливать рольставни.
Закрытые рольставни не только защищают окна от взлома, но в лютые морозы уменьшают теплопотери через окна, а в летнюю жару снижают перегрев дома солнечными лучами. Установку рольставен на окна лучше предусмотреть заранее, на стадии проектирования дома.
Посмотрите видео урок по планировке одноэтажного дома с мансардой:
Идеи планировки двухэтажного дома
Определить конструкторские решения будущего коттеджа с первого раза удаётся не всегда. В большинстве случаев на это уходит много времени, так как разработка планировки двухэтажного дома имеет много особенностей, которые должны учитываться с предпочтениями каждого проживающего. Сделать это можно самостоятельно или обратиться к услугам специалистов. В качестве примера представляем несколько оригинальных идей.
Проект № 1
- Общая площадь: 170,7 м2.
- Жилая площадь: 70 м2.
- Площадь первого этажа: 92 м».
- Площадь второго этажа: 17,7 м2.
- Размер дома: 9,9*15,5 м.

Проект двухэтажного дома площадью более 150 м2Источник innstroy.ru
Лаконичный коттедж эконом-класса, укомплектованный всем необходимым для комфортного проживания семьи из четырёх человек. Планировка первого этажа показывает наличие просторной гостиной, расположенной в заднем крыле дома. Помещение объединено с кухонной рабочей зоной и столовой. Строгая прямоугольная форма станет причиной зонирования большого зала на несколько частей. Делать это придётся внутренними элементами отделки (обоями, кафелем, мебелью). Небольшое пространство совмещённого санузла (4,4 м2) станет проблемой для монтажа ванной. Владелец будет вынужден решать между душевой кабинкой или уголком.
Проблема первого этажа решается благодаря увеличившемуся санузлу на втором. На 5,8 м2 уже удастся разместить небольшую ванную и остальную сантехнику.
Оригинальным может показаться решение второго кабинета с аналогичными характеристиками. Вы скажете, – «Для чего на втором этаже 2 туалета!». Ответ очевиден – дети. Они растут по одному принципу: захотел один, побежал и второй. Поэтому на данном примере планировки эта проблема устранена.
3 спальни могут использоваться для членов семьи, оставшаяся внизу – в качестве гостевой. Бросающимся в глаза недостатком является отсутствие кладовой или гардеробной.
Проект № 2

Проект двухэтажного дома площадью более 150 м2Источник www.faulaconstruction.com

Проект первого этажа дома площадью более 200 м2Источник drevkostroy.ru
- Общая площадь: 236,38 м2.
- Жилая площадь:212,69 м2.
- Площадь первого этажа: 141,4 м2.
- Площадь второго этажа: 95,3 м2.
Оригинальный, а самое главное – стильный и современный дом, относящийся к стилю хай-тек. Огромные, во всю стену, панорамные окна, зал для занятия тяжёлой атлетикой или фитнесом на первом этаже. Преимущества планировки двухэтажного дома в следующем:
- Наличие просторной общей зоны, образованной объединением гостиной, столовой и кухни.
- Дополнение первого этажа спортзалом.
- Классная веранда на втором.
- Сближающие с природой панорамные окна, через которые отлично просматривается ухоженный ландшафт участка.
- Отдельный вход в санузел из главной спальной второго этажа.
Такая планировка нацелена на людей, предпочитающих современный стиль, спортивный образ жизни и не принимающих старую добрую классику.
Проект № 3

Проект двухэтажного дома площадью более 250 м2Источник demo2.sbsite.ru
- Общая площадь: 287,8 м2.
- Жилая площадь: 95 м2.
- Площадь первого этажа: 118,7 м2.
- Площадь второго этажа: 111 м2.
Дом в классическом стиле с отдельной котельной, поделённой кухней, раздельным санузлом, большой террасой и спальней на первом этаже. Последнюю, при необходимости, можно использовать как гостевую. Благодаря наличию всего этого, планировка предстаёт в индивидуальном стиле и подойдёт для утончённых, любящих оригинальность людей.
Уникальность и отличие заканчиваются после подъёма по лестнице. Второй этаж коттеджа предстаёт в стандартном виде:
- Несколько спален.
- Санузел.
- Гардеробная.
Проект № 4

Проект двухэтажного дома площадью 182 м2Источник myhome.nifty.com
- Общая площадь: 182,1 м2.
- Жилая площадь: 53 м2.
- Площадь первого этажа: 95,9 м2.
- Площадь второго этажа: 87,2 м2.
Дом со вторым этажом мансардного типа, построенный в стиле шале. Планировка просторного первого этажа полностью отдана под так называемые нежилые помещения и гостиную, площадью 26,78 м2. На входе гостей встречает небольшая прихожая с дверью в кладовую, чуть дальше санузел и рабочий кабинет главы семейства. В отсутствии необходимости такого помещения допускается перепланировка под другие цели, например, детская игровая комната, просторная гардеробная или что-то иное.
Хотя кухня и гостиная размещены в одном большом зале, разделение происходит благодаря зонированию внутренней отделкой и небольшому «притоплению» в заднее крыло дома. Здесь же выход на террасу.
Второй этаж дома спроектирован по классическому принципу: 3 спальни, коридор с лестницей в центре и просторный санузел.
Сложности планировки двухэтажных домов
Существуют и другие моменты, увеличивающие стоимость строительства. Рассмотрим их более подробно:
- за счет большого веса двухэтажного дома необходимо дополнительное усиление межэтажных перекрытий, в противном случае проживание в помещении будет довольно опасным;
- коммуникационная система и отопление в таких постройках имеет более сложную разветвленную схему, требующую прокладки дополнительных водопроводов, канализационных стоков, установки специального циркуляционного насоса, который способствует нормальному передвижению теплоносителя внутри контура, для обеспечения полноценного отопления;
- строительные, отделочные и фасадные работы требуют установки лесов, для обеспечения возможности подъема материалов на нужную высоту;
- для семей с детьми и пожилыми людьми разрабатываются специальные проекты, где комнаты, принадлежащие указанным жильцам, и необходимые помещения располагаются на первом этаже, так как перемещение по лестницам для них может быть опасным и проблематичным;
- увеличиваются затраты на покупку утеплителя, потому как возрастает ветровая нагрузка на стены.

Но, несмотря на перечисленные минусы, при наличии достаточных средств для строительства можно на небольшом участке земли соорудить действительно надежное и очень комфортное жилье. Для этого можно подобрать бесплатный проект или воспользоваться услугами специализированной компании, которая занимается проектными разработками.
Проекты двухэтажных домов и коттеджей бесплатно: чертежи и фото
Двухэтажный дом – отличный способ увеличить полезную площадь, не расширяя участок. В некоторых случаях это единственный вариант получить просторный дом. Но встречаются и хозяева участков, которые хотят уместить на ограниченной площади и жилую постройку и . Двухэтажный дом требует особого к себе отношения
и, соответственно, отдельного проекта.

Многие владельцы одноэтажных домов думают о том, что второй этаж поможет им расширить полезное пространство
. Но дело в том, что фундамент и стены постройки должны были изначально быть рассчитаны на такую нагрузку. Поэтому проекты для двухэтажных домов
предусматривают вес второго этажа и мебели, которая будет там находиться.

Также существуют проекты домов с мансардой
, гаражом или цокольным этажом. Конечный результат зависит от желания заказчика. Разумеется, нужно учитывать не только пожелания владельца, но и технические особенности участка
. Самый простой способ построить дом – обратиться к готовому и реализованному проекту. С одной стороны, вы можете быть уверены в том, что этот дом действительно получится прочным и красивым. С другой стороны, он может быть не похож на «дом мечты».

Поскольку чертежей и фото проектов домов и коттеджей очень много
, то рекомендуем вам рассматривать варианты, которые могут разместиться на вашем участке. Так, например, для небольших и узких участков есть специальные проекты.

Также стоит учитывать общую площадь полученного дома. Так, есть варианты до 100 кв. м, а есть и такие, которые превышают 300 кв. м.

Подобрав для себя самый подходящий вариант
, вы можете найти специалиста, который за разумную плату внесет в него некоторые коррективы. Так, например, можно будет изменить размер некоторых комнат, «передвинуть» или убрать некоторые стены
(если они не являются несущими). Но серьезно изменить внешний или внутренний облик дома не сможет ни один профессионал, ведь в этом случае получится совершенно другой проект.









С развитием технологий проблемы с постройкой полностью исчезли. Несмотря на то, что в современном мире возведение дома в несколько десятков этажей уже не представляет никакой трудности, в загородном строительстве наибольшей популярностью по-прежнему пользуются проекты небольших двухэтажных домов.

Проект небольшого двухэтажного кирпичного дома
Преимущества двухэтажных зданий

Коттедж с гаражом строится очень часто. Такой проект с 2-мя этажами обладает большим списком преимуществ:
- С такой технологией есть возможность минимизировать расход земельного участка. Особенно остро вопрос стоит в случае наличия маленькой территории собственности.
- Двухэтажный коттедж раскрывает новые возможности для дизайнеров. Таким образом, вы сможете сделать красивый дом любого стиля. Достаточно будет показать специалисту фотографию или постараться сделать все своими усилиями.
- Построить дом двухэтажный можно с различными элементами декора, например, балконом или террасой.
- Также расширяются возможности внутри здания, поэтому интерьер двухэтажного дома может украшаться как угодно.
Подготовка
Рассмотрим некоторые нюансы, которые нужно учитывать еще на этапе планирования дома.
Должна присутствовать гармоничность и симметрия обеих половин дома, это сделает строение цельным. Добиться подобного не всегда легко, особенно если планируются постройки разной площади, отдельные входы. Общая подводка коммуникаций, разделяющаяся в доме на две части, потребует согласованности будущих соседей. Планировка. Необходимо создать визуальный проект, на котором будут абсолютно комнаты все обеих квартир. Также требуется чертежный вариант фасада, придомового участка. Материалы
Здесь важно прийти к единому решению, чаще всего строят дома из панелей СИП, пено- и шлакоблоков, бруса, кирпича. У каждого их них есть свои достоинства и недостатки, поэтому еще на этапе составления проекта нужно договориться, из чего будет дуплекс
Особенности проектирования и строительства двухэтажных коттеджей
Существует несколько нюансов, которые следует обязательно учитывать при составлении проекта дома в два этажа.
Планировка.
Стандартно на первом этаже размещаются гараж, кухня, гостиная, кладовые, гостевой санузел. На втором этаже находятся спальни, санузлы для семьи. Часто дополнительно оборудуются подвальные и чердачные помещения. В них обычно делают сауны, игровые комнаты или тренажерные залы. Но если типовая планировка вам не подходит, и вы хотите отступить от стандартных решений, готовый проект можно переделать или составить новый.
Лестницы.
По сути, проектирование лестниц тоже входит в предыдущий пункт. Но момент настолько обширный и значимый, что стоит рассмотреть его отдельно. Лестницы – один из основных недостатков двухэтажных домов. Во-первых, они отбирают полезную площадь. Во-вторых, это отдельная графа расходов на проектирование, материалы и строительные работы. В-третьих, лестница небезопасна, если в доме будут проживать маленькие дети, пожилые люди, инвалиды – это нужно учитывать еще на этапе выбора двухэтажного дома. Но и отказаться от лестницы нельзя. При грамотном подходе лестница будет успешно справляться со своими задачами без какой-либо угрозы для жильцов двухэтажного дома. И станет изюминкой интерьера, если ее красиво оформить в соответствии с общим стилем дома.
Удобная и безопасная лестница на второй этаж
Фундамент.
С одной стороны, площадь фундамента будет меньше, чем при возведении одноэтажной постройки. Но с другой стороны, он должен быть более прочным и надежным, чтобы выдерживать опорные перекрытия двух этажей
Важно не только правильно подобрать тип фундамента, его конструкцию. Учитывается также вид грунта, рельеф участка, климатические условия и количество осадков, и еще множество на первый взгляд мелких деталей
Однако если их проигнорировать, дом в лучшем случае исправно прослужит не более пяти лет, а в худшем – его эксплуатация завершится катастрофой.
Усиленный фундамент ленточного типа для двухэтажного дома
Все эти нюансы следует учитывать уже на этапе проектирования будущего дома своей мечты. Конечно же, человек, далекий от инженерии, архитектуры и строительства, самостоятельно с этой задачей не справится – проектированием должны заниматься только профессионалы.
Из чего строить двухэтажный дом
Строительных материалов для возведения домов существует множество, выбор зависит от целого ряда факторов: финансовых возможностей, особенностей конструкции будущего дома, климатических условий региона, наконец, архитектурного стиля дома. Современные застройщики используют такие виды строительных материалов для двухэтажных домов:
кирпич различных видов;
керамоблоки;
газоблоки;
древесина.
В типовой застройке преобладают недорогие каркасные дома. Но в принципе сложно найти проект, в котором бы использовался только один вид материала. Обычно комбинируется несколько для цокольного этажа, внешних стен, внутренних перекрытий, чердачных и подвальных помещений.
Проекты двухэтажных домов с гаражом
Панировка домов и коттеджей с двумя этажами может быть дополнена строительством гаража в цокольном помещении либо в виде пристройки к дому. Отдельное место могут позволить себе только владельцы больших участков. Для строительства необходимо использовать те же материалы и то же архитектурное направление, что и для дома, чтобы не нарушать общее восприятие.
При устройстве гаража в подвальном помещении важным элементом является лестница. Под ней можно устроить зону хранения зимних заготовок
Важно продумать хорошую вентиляцию, чтобы избежать попадания выхлопных газов в помещение
Пристройка-гараж
Преимущества проектов двухэтажных домов
- Если вы остановили свой выбор на проекте двухэтажного дома, то вам здорово удастся сэкономить на монтаже крыши за счет ее небольшой площади.
- Как правило, такие дома подразумевают простую планировку с четким делением дома на дневную и ночную зону. На первом этаже расположены гостиная, столовая кухня, санитарная комната и кладовые. На втором, подальше от любопытных глаз, расположены спальни и ванная комната.
- При строительстве дома получается существенная экономия на межэтажном утеплении. А, кроме того, в холодное время года, в спальнях на втором этаже будет теплее, чем на первом этаже.
- Экономическая выгода видна даже на черновой и чистовой стяжке пола. При строительстве двухэтажного дома, как показывает практика, стоимость 1 м 2 полезной площади обходится дешевле, чем при строительстве одноэтажного дома аналогичной площади.
- Что касается фундамента, то здесь выгода, как говорится, “фифти-фифти”. С одной стороны, под 2 эт дом не нужен фундамент большой площади. А с другой стороны – он должен быть мощнее, чем фундамент для одноэтажного дома, поскольку должен выдержать нагрузку второго этажа.
Недостатки проектов двухэтажных домов
Абсолютно идеальных проектов не бывает. При всех достоинствах проектов 2 этажных домов, можно найти и недостатки.
- В проектах двухэтажных домов обязательно предусмотрены лестницы. А это не совсем рациональное использование жилой площади.
- На чем точно не удастся сэкономить, так это на возведении стен. В любом случае они должны быть усилены, чтобы выдержать нагрузку второго этажа.
- Чтобы второй этаж был полностью функциональным, необходимо предусмотреть еще один санузел на этом этаже. То есть, предполагаются, пусть и небольшие, но дополнительные расходы.
Подведем итоги: при выборе проекта двухэтажного дома
- Компания рекомендует на небольшом земельном участке строить 2-этажный дом. Это выгоднее. Несомненное преимущество – это экономия площади земельного участка. Застройщик получает прекрасную возможность разбить на участке сад, построить гараж возле дома и дополнительные подсобные помещения: летняя кухня или баня.
- Если площадь дома предполагается свыше 200 м 2 , то проект двухэтажного дома обойдется значительно дешевле.
После того как окончательно оформлены все необходимые документы на приобретённый земельный участок, можно перейти к планировке дома. Конечно, можно пересмотреть несколько десятков готовых проектов, а можно обратиться в понравившуюся строительную компанию с индивидуальным заказом и отдельными требованиями. План небольшого двухэтажного дома подбирается довольно быстро.
План небольшого двухэтажного дома из кирпича
В последнее время огромной популярностью пользуется план двухэтажного дома с мансардой и гаражом. Но для начала стоит рассмотреть несложные проекты загородных домов и особенности их конструкции. Чаще всего дома такого типа возводятся из профилированной древесины, которая отличается идеальными звуко- и термоизоляционными качествами, а так же экологической чистотой и высоким уровнем противопожарной безопасности.
Однако план двухэтажного дома из клеёного или оцинкованного бруса потребует огромных финансовых вложений, поэтому дома из кирпича и бетонных блоков по-прежнему не утратили своей популярности.
Одним из важных этапов проектирования многоэтажного дома является подбор строительных материалов, цель которых в обеспечении не только первоклассных эксплуатационных характеристик, но и безупречного внешнего вида. Качественная планировка двухэтажного дома требует грамотного подхода к возведению опор фундамента, что так же является ещё одним существенным фактором, определяющим оптимальные строительные материалы.
Сегодня всё чаще в пригородных районах небольших городов можно увидеть множество деревянных домов с несколькими этажами. Причина такой популярности древесного строительного материала – безупречные эксплуатационные качества и стильный внешний вид.
План простого двухэтажного дома из клеёного бруса и другой древесины является лучшим решением для небольших и тихих районов. Клеёный брус стойко переносит любые воздействия капризной погоды, особенно повышенный уровень влажности и резкие перепады температур. При этом внутри помещения как на нижних, так и на верхних этажах создаётся неповторимая атмосфера домашнего уюта и комфорта. Кроме того, данный строительный материал отвечает всем европейским и отечественным стандартам качества и экологической безопасности.
Материалы для строительства
Например, древесина всегда обеспечивает прекрасную циркуляцию воздуха, оно экологично, но поддается быстрому гниению, требует специальных пропиток. Мало того, что в нём могут завестись насекомые – оно пожарооопасно, так что если в доме имеется гараж, лучше отказаться от дома из бревна или бруса. Альтернативой может послужить – металлосайдинг, имитирующий натуральное дерево.

Использование новейших строительных материалов в оформлении наружных элементов частных домов, позволяет воплощать любые дизайнерские идеи
Можно обратить свой взор на газо- или пенобетонные блоки, так как они не только прочные, но и негорючие. К тому же это давольно бюджетный вариант строительства дома.
Без сомнений, наилучшим из всех подходящих материалов для строительства дома с гаражом под одной крышей считается традиционный кирпич. При этом нужно помнить, что из-за традиционно большого веса такому строению нужен особо прочный фундамент. В этом случае, кирпичный дом с подземным гаражом или с гаражом в цоколе – это очень хороший вариант.

Практичный кирпичный дом с двумя гаражами
Итак, небольшой дом с гаражом под общей крышей – это, как минимум, экономия площади, что особенно важно на небольшом участке, и, как максимум, это комфорт, удобство и современный подход к обустройству своего жилья
Фото проекты домов в два этажа с гаражным помещением
Автогараж, соединенный с домом – это весьма удобно. В первую очередь, вы правильно применяете территория участка, а еще сбережете на строительных материалах, ведь у пристроенного гаража одна стенка общая с домом. Если над гаражным помещением будут комнаты для проживания – то вам не требуется кровля для данного сооружения. Пристроенный автогараж можно создать отапливаемым и дополнительно расположить в нем мастерскую.
В планировке предполагают два входа в автогараж – со двора и из дома.
Во время проектирования гаража большое внимание нужно выделить вентиляционной системе. Она не должна быть соединена с вентиляционной системой дома. Необходимо установить хорошее вытяжное устройство
Необходимо установить хорошее вытяжное устройство.
Фото вариантов домов с гаражным помещением:


































