Подготовительные работы
Прежде чем начинать непосредственно закреплять гипсокартон, крайне важно проделать подготовительную работу. Чтобы убедиться, что листы можно закреплять, требуется сделать контрольную проверку обрешетки из профиля
Инструкция такая:
Чтобы убедиться, что листы можно закреплять, требуется сделать контрольную проверку обрешетки из профиля. Инструкция такая:
- Внимательно рассмотреть все соединительные участки. Саморезы не должны торчать.
- Проверить каркас на жесткость – он ни в коем случае не должен скрипеть или шататься.
- Удостовериться, что профили зафиксированы ровно. Проверку удобно сделать, задействовав уровень, правило и подходящее освещение.
Проверять равномерность нужно обязательно по всей конструкции, а особое внимание стоит уделить углам.
Далее требуется приготовить листы. Их необходимо зафиксировать в шахматообразном порядке. Первый крепится снизу вверх, оставляя свободный промежуток. Второй – от потолка вниз к полу, также оставляя немного пространства. Потом – над дверьми и вокруг окна крепятся обрезки деталей. Подходящие размены вырезаются фрезером, а фаска делается рубанком по кромке.

Последняя стадия – взятие 2,5-сантиметровых саморезов и шуруповерта. В отдельных случаях могут потребоваться куски стоечного профиля как подложки.
Только теперь начинаются основные действия.
Способ выравнивания стены путем приклеивания ГКЛ
Если не хочется лишаться пространства и не отводить под создание каркаса столь внушительное место можно воспользоваться другим способом выравнивания стен ГКЛ, а именно приклеить их к стене. Для этого желательно все-таки сравнять на стене основные неровности в виде бугров и дырок. После этого можно приступать к самому процессу.
Стену перед работами следует прогрунтовать. Заранее раскраиваются листы для укладки по всей стене. При этом следует учесть, что необходимо оставить зазоры под потолком и над полом примерно по 50 мм, чтобы лучше просох клей, на котором будут держаться ГКЛ.
По всей стене сверлиться отверстия под дюбеля. Шурупы вкручиваются в них так, чтобы шляпки образовали ровную по уровню плоскость. Это необходимо для правильного размещения листов, иначе не получится сравнять поверхности листов и подогнать все под одну ровную стенку.
Раствор клея готовится с использованием специальных сухих смесей с добавлением воды.
В результате должен получиться раствор по консистенции похожий на пасту. Сохнет он быстро, так что и разводить его нужно непосредственно перед монтажом. Поверхность листа тщательно очищают от пыли для лучшей адгезии с клеем.
Наносится клей на заднюю поверхность листов кучками и продольными полосами по краям листа и по центральной его линии. Лучше всего, когда кучки располагаются на расстоянии 20-30 см друг от друга. Нельзя разравнивать их в один равномерный слой, так как получится большой расход раствора, и не получиться нормально его пристыковаться по всей площади к стене.
Приложив лист к стене, следует его прижать равномерно к шляпкам шурупов. При необходимости используется резиновый молоток. Чтобы не пробить дырки, можно прикладывать деревянную доску или брус к листу, а уже по нему стучать молотком.
Когда отделка стен гипсокартоном завершена, необходимо выждать время необходимое для высыхания клеевого состава. Узнать продолжительность высыхания можно из инструкции, прилагаемой к клею.
Только после этого можно приступать к дальнейшим работам. Швы между листами заклеиваются сеткой и закрываются стартовой шпаклевкой до общего уровня листов. Как и говорилось выше, финишную шпаклевку для всей поверхности следует использовать лишь при необходимости.
В итоге какой бы способ ни были выбран, в результате получается идеально ровная и гладкая поверхность без особых трудов и затрат, связанных с оштукатуриванием. Вариант с наклейкой листов подойдет также при необходимости произвести частичный ремонт стен гипсокартоном или сформировать откос на окне или арку. Последний вариант возможен за счёт того, что, когда гипсокартон перфорирован и слегка намочен, он может принимать любые формы.
Стены и перегородки из гипсокартона
Основная задача ремонта в большинстве домов и квартир — привести стены в нормальное состояние. Ведь пару десятилетий назад почти никто об идеально ровных стенах и не задумывался.
Выравнивали по принципу «хоть как-то». Исправить положение можно по всем правилам: сбить старую штукатурку и полностью заштукатурить по маякам. Это — правильно и надежно.
Но долго, грязно, дорого. Проще использовать так называемые сухие методы: выровнять поверхность стены гипсокартоном (ГКЛ). Вторая задача, которую часто приходится решать в процессе ремонта: перепланировка.
Мы убираем старые перегородки, ставим новые. Новые межкомнатные и декоративные перегородки тоже делают с использованием гипсокартона. Как выравнивать и ставить стены из гипсокартона своими руками и расскажем в статье.
Достоинства гипсокартона в качестве сухой штукатурки
При декоративной отделке помещений, выравнивании потолков и стен в комнатах и даже для частичной их перепланировки (например, обустройства арок или ниш) гипсокартон используется довольно часто.
Этому способствует достаточно широкая номенклатура выпускаемых промышленностью гипсокартонных листов – как обычного, так и особого исполнения (влаго- и огнестойкого). Применение в отделочных работах гипсокартонных листов существенно снижает сроки выполнения внутренних работ при ремонте квартиры. Этому способствуют:
- Технологичность и простота работы с таким материалом – гипсокартонные листы легко разрезать и изгибать, используя при этом простейшие и доступные инструменты.
- Разнообразие способов закрепления гипсокартона к сопрягаемым поверхностям – можно использовать специальные клеи, шурупы, саморезы и даже гвозди.
- Гипсокартон обладает незначительной плотностью, поэтому не создаёт давления на несущие конструкции и фундамент.
Бескаркасный способ монтаж гипсокартона на стены
Применяя такой способ, необходимо использовать гипсокартон толщиной 12 мм. При этом высота потолка не должна превышать 3 м. Перед тем как приступить к монтажу гипсокартона к стене, следует провести ряд подготовительных работ.
- Подготовка клеящего состава. Требуется очень внимательно отнестись к этому пункту, поскольку здесь многое зависит от кривизны стены. Если стена практически ровная, тогда клей можно выбрать в баллонах. Для него применяется специальный пистолет. Но если стена имеет большие волны, тогда применим сухая клеящая смесь. Она накладывается кучками, при прижимании листа к стене, клеевой состав заполняет все пространство. Какой именно клей применить к бескаркасному методу? Нужно также отталкиваться от того, какая стена (бетон, кирпич, дерево, саман, глина), влажность помещения, перепады температуры;
- Подготовка поверхности стен. Здесь процедура заключается в следующем:
- Следует со стены убрать всю пыль, паутину и другие загрязнения. Если на стене имеются обои – их надо сорвать. Убирать пыль можно пылесосом;
- Если в стене есть щели, трещины – их надо немного расширить, после обработать грунтовкой и зашпаклевать. Также нужно сделать с дырами или другими дефектами. Чтобы стена была максимально подведена к ровной поверхности;
- Если на стене есть грибок или сырость. Надо высушить стену и обработать хлоркой, разведенной с водой и медным купоросом. После высыхания поверхность обрабатывается грунтовой смесью глубокого проникновения.
- Подготовка гипсокартона. Стену надо замерить. После этого рассчитать: сначала приклеивается целый лист, после остается место для фрагмента из вырезанного листа. Для этого нужен замер. Резать гипсокартон нужно таким образом:
- Лист кладется на горизонтальную поверхность;
- Строительным ножом делается разрез картона и немного гипса, по намеченной линии;
- На лист следует немного надавить, и он лопнет по разрезу;
- Две части складываются вместе, чтобы картон на другой стороне согнулся;
- Перерезать согнутый картон.
После этого на порезанных листах гипсокартона делается фаска для будущих стыков.
Инструкция для изготовления фаски на листе гипсокартона
Приклеивание гипсокартона
Сначала к стене клеятся целые листы. Лучше всего, когда монтаж начинается с центра стены. Не стоит забывать о сантиметрах вверху и внизу – 5 см. отступа. После приклеивания целых листов, следует приклеить фрагменты гипсокартона.
В случае, если клеевым составом служат жидкие гвозди – клей наносится пунктиром.
Пример нанесения клея на лист гипсокартона
Несмотря на то, какой клей – лист требуется прижать к стене и зафиксировать его подпоркой с мягким концом. Уровнем измеряется ровность приклеенного листа. Это надо сделать по вертикали, горизонтали, диагонали. Финишная отделка не отличается поэтапностью и работой от каркасного метода. При обшивке стен гипсокартоном в два слоя следует помнить, что листы и границы не должны совпадать. Это главное правило, иначе может пойти трещина или деформация ГКЛ.
- Стоимость обшивки стен гипсокартоном без каркаса 215 р. за 1 кв. м.
- Цена обшивки стен гипсокартоном с металлическим каркасом 250 р. 1 кв. м. (расценки могут меняться в зависимости от сложности работы).
Стоимость работ дана, если нет времени на данную работу или неуверенность в будущем. Мастера составляют смету со всеми замерами и стоимостью работы.
Монтаж гипсокартонных плит
Работу с гипсокартонными плитами нельзя назвать простой. Этот материал обладает достаточно большой хрупкостью. Если не аккуратно переносить гипсокартон, пилить и резать его, то есть возможность испортить всю плиту. Сегодня мы покажем, как правильно обращаться с этим строительным материалом, и наконец-то выровняем нашу стену, и забудем все, как страшный сон.
А теперь рассмотрим, как быстро, и без пыли, разрезать лист гипсокартона.
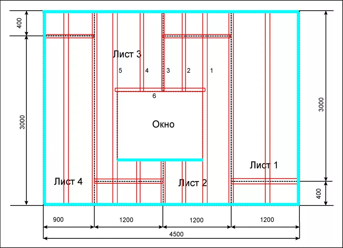
ШАГ 1: разметка. Делаем замеры, и чертим на листе гипсокартона нужную линию. Лучше всего использовать черный маркер (его будет видно с любого расстояния).
ШАГ 2: подготовка. Прилаживаем длинную линейку или профиль, так, чтобы ровно соединить две стороны. Когда удостоверились в точности прямой линии – режем.
ШАГ 3: рез. Прикладываем острие канцелярского ножа к линии, и начинаем медленно, но уверенно делать рез. В этом случае нам главное прорезать верхний слой строительной бумаги, но никак не гипс. Достаточно будет усилия 2-3 кг. Повторяем эту процедуру с двух сторон листа. Обязательно нужен нож с отламывающимися лезвиями, чтобы острие всегда было максимально острым, и не рвало, а резало бумагу.
ШАГ 4: отламываем. Кладем лист на край стола так, чтобы отламывающаяся сторона была в воздухе. Плавным нажатием руки отламываем лишний кусок гипсокартона. Чтобы получить максимально ровный торец – используем рубанок по гипсокартону, или сглаживаем край напильником.
Вот так легко и просто можно разрезать лист гипсокартона. Но, это лишь мизерная часть роботы по установке гипсокартона своими руками. После того, как мы подготовили гипсокартонные плиты нужного нам размера – приступаем к установке их на каркас. Берем в руки шуруповерт, горсть саморезов, зовем помощников, которые буду придерживать листы, пока вы надежно не зафиксируете, и приступаем!
ШАГ 1: примеряем лист. Начинать обшивать стену гипсокартоном нужно с угла. Берем необходимый лист, подносим его к каркасу. Максимально плотно приставляем его к углу стены. Но, не забывайте о строительном уровне или о банальном строительном уголке. Первый лист нужно выставить по уровню, а дальше все пойдет, как по маслу
Важно, чтобы лист «лежал» сразу на трех стоечных профилях. Первый профиль от стены полностью закрываем листом, а от края третьего профиля отступаем 15-25 мм от края. На третьем профиле будут крепиться сразу два листа гипсокартона
На третьем профиле будут крепиться сразу два листа гипсокартона.
ШАГ 2 фиксация. После того, как вы убедились в том, что ваш лист расположен так, как нужно – привинчиваем его саморезами к профилю. Для начальной фиксации не будет достаточно 2-3 самореза на весь лист. Под его весом, края могут сломаться, и лист рухнет на пол, тем самым придет в негодность. Фиксируем лист со всех сторон по, 2 самореза на сторону. Далее проводим окончательную фиксацию листа. Вкручиваем саморезы через каждые 250 мм. Правильно вкрученный саморез не должен чувствоваться рукой по поверхности листа, но и перестараться тоже нельзя. Шляпка самореза должна «нырнуть» в гипсокартон не более чем на 1 мм. Если вы сильно вкрутите саморез, то будет поврежден верхний бумажный слой. В таком случае, желательно, рядом вкрутить еще один саморез, только правильно.
ШАГ 3: стыки. Место стыка двух гипсокартонных листов нужно обработать фрезой, или обычным ножом. Снимаем фаску для будущей штукатурки. В дальнейшем это исключит неровные стыки двух гипсокартонных листов.
Вот и все! Таким образом, выполняя шаг за шагом, мы с легкостью выровняли стену гипсокартоном. Дальше нам остается сделать финальные штрихи – заделать все швы и стыки плит специальной шпатлевкой. Таким нехитрым способом можно выровнять любую стену, даже в старом глиняном доме. Главное, чтобы было желание!
Монтаж каркаса
Необходимо определить минимальное расстояние, на которое металлический каркас будет отстоять от стены. Это расстояние может быть обусловлено характерными неровностями стены, а также необходимой толщиной теплоизоляции и прокладываемыми в стене коммуникациями.
Стена, которую необходимо выровнять и звукоизолировать. Снимать старые обои нет необходимости
Важно: для дополнительной тепло- и звукоизоляции можно перед началом сборки каркаса оклеить стены фольгоизолом, используя двусторонний скотч:
Затем производится разметка.
Откладываем минимальное расстояние, которое мы определили в предыдущем шаге на потолке в нескольких точках. Затем соединяем эти точки прямой, для этого удобно использовать красящий отбивочный шнур. Далее с помощью отвеса переносим несколько точек на пол и также соединяем их прямой.
Важно: линии должны находиться строго в вертикальной плоскости, иначе стена будет «завалена»
По полученным линиям монтируем направляющий профиль ПН-27х28, используя дюбеля и саморезы.
Затем нарезаем так называемый потолочный профиль — ПП 60х27 мм, используя ножницы по металлу. Длина потолочного профиля должна быть на 5-7 мм меньше расстояния между направляющими профилями.
Заводим потолочный профиль в направляющий. Шаг установки потолочного профиля принимаем 400 или 600 мм, начиная от края стены. У краёв стены также обязательно должны быть установлены профили: потолочные или направляющие.
Для обеспечения жёсткости конструкции монтируем подвесы. При высоте потолка до 3-х метров достаточно будет двух подвесов на один вертикальный профиль.
Контролируем, чтобы монтируемые профили находились в одной плоскости. Это можно сделать, приложив длинный строительный уровень к поверхности вертикальных профилей.
Свойства гипсокартона
Из основных качеств гипсокартона под финишную отделку можно выделить следующие:
- Листы ГКЛ отличаются высокой огнестойкостью, имеют превосходные показатели звуко- и теплоизоляции.
- Не содержат веществ, которые вредно влияют на человеческий организм, более того, установлено, что вследствие своей способности регулировать показатели влажности в помещении, гипсокартон может устанавливать в нём оптимальный микроклимат.
- Смонтированные гипсокартонные листы образуют по фактуре гладкую и ровную поверхность, которую в большинстве случаев остаётся только окрасить, оклеить обоями либо облицевать плиткой (кстати, под листами можно успешно спрятать все проведённые в помещении энергокоммуникации).
- Материал дешевый, поскольку та же часть поверхности, подвергнутая обычному оштукатуриванию, обойдётся владельцу жилья в несколько раз дороже.
Тем не менее, гипсокартон все же нуждается в финальной отделке поверхности.

На каких поверхностях допустима облицовка
Конструкция Кнауф применима в различных областях: стены, потолки, полы.
Бескаркасной метод применимый для бетонных, кирпичных стен. При установке системы таким методом надо правильно подобрать грунтовку.
Каркасный метод применяют в том случае, если помещение влажное, стены имеют свойство сыреть, есть желание улучшить звукоизоляцию и теплоизоляцию при помощи дополнительного материала.
- есть комплекты для создания подвесных потолков;
- наборы для работы на мансарде – крепление со стороны стропил.
Комплекты ГКЛ КНАУФ монтируют на различные поверхности. К каждой, из которых есть свои требования и выполнение определенных правил.
Отделка конструкции
После монтажа листов ГКЛ необходимо проклеить стыки между ними специальной армирующей лентой – серпянкой, а затем зашпатлевать универсальной шпаклёвкой, например, Knauf Fugen.
Проклейка стыков между листами гипсокартона армирующей лентой – серпянкой
Также необходимо зашпатлевать места установки крепежа.
После высыхания универсальной шпаклёвки необходимо удалить неровности шпателем, и зашлифовать поверхность при помощи наждачной бумаги мелкой фракции.
Далее наносят финишную шпаклёвку, а после её высыхания проходятся наждачной бумагой ещё раз.
Перед окраской или оклейкой обоями поверхность необходимо загрунтовать универсальной грунтовкой за несколько подходов.
На этом всё. Надеюсь, статья оказалась для вас полезной.
Также вам могут быть интересны следующие статьи:
- Как собрать потолочный короб из гипсокартона;
- Полка из гипсокартона своими руками;
- Перегородка из гипсокартона и профилей своими руками.
Установка гипсокартона на кирпичную стену каркасным методом
Такой вариант больше подходит в тех случаях, когда стены очень неровные. Поэтому специалисты рекомендуют использовать гипсокартонные листы, толщиной 12 мм и больше. Что касается каркаса, то он может быть металлическим или деревянным. Но лучше, конечно деревянный, он экологичен, дешевле, а также удобнее в использовании.
Инструменты и материалы:
- Отвертка;
- Шуруповерт;
- Дрель;
- Шурупы и саморезы;
- Уголки металлические;
Технология крепления начинается с монтажа двух реек в горизонтальном положении на стену, затем, на потолок и на пол. Обязательно необходимо их выровнять вертикально. Между ними следует установить вертикальные элементы, которые по ширину равны гипсокартонному листу.
Для крепления гипсокартонных листов к каркасу следует использовать шурупы или саморезы. Оптимальная длина их в пределах 30 мм, соблюдать между ними расстояние рекомендуется в пределах 25 см. как правило, между листами оставляют небольшой зазор, размером 5 мм. Это необходимо для отделки швов. Надо понимать, что каркасный метод обшивки стен уменьшает полезное пространство помещения.
Общая характеристика и подбор материала
Гипсокартон — спрессованное гипсовое полотно, оформленное в лист и обернутое облицовочным картоном.
Он успешно применяется в строительстве и отделке уже более 100 лет, хотя на пик популярности вышел только сегодня. Причина столь запоздалого обращения к очень удобному и недорогому отделочному материалу лежит на поверхности: активное развитие всей отрасли — и как следствие этого отличное предложение на рынке, позволяющее подобрать гипсокартонные листы необходимых характеристик и цветовых решений.
- «дышащий» материал;
- экологически безопасен;
- не относится к горючим;
- поддерживает нормальный для человека уровень влажности в помещении.
Главный недостаток гипсокартонных листов — достаточно слабая влагостойкость. Причем в продаже присутствуют листы гкл с «прокаченным» показателем влагостойкости — они идут, как правило, в зеленом либо голубом цвете — но даже в таком случае гипсокартон не рекомендуется к использованию на открытом воздухе. К тому же, он боится минусовых температур и отличается хрупкостью.
Спектр использования гипсокартона широк, но потолки занимают в нем ключевое место.
Купить нужный материал для того, чтобы сделать двухуровневый потолок из гипсокартона своими руками, только на словах кажется элементарным делом. Сперва нужно выяснить, какой из существующих его видов лучше всего подходит конкретно для вашего ремонта. Определяется это функциональным назначением помещения:
- какой в нем уровень влажности;
- насколько велик уровень пожарной опасности;
- периодичность возникновения температурных перепадов;
- нижний и верхний температурный порог.
Как выбрать гипсокартонные листы правильно для того, чтобы сделать двухуровневый потолок из гипсокартона своими руками, вам подскажет наша таблица, в которой напротив каждого типа гипсокартона дана рекомендация по условиям использования.
| Тип гипсокартона | Цвет | Назначение |
| Обычный ГКЛ | Серый | Для внутренней отделки в помещениях с нормальным и низким режимом влажности |
| Влагостойкий ГКЛВ | Зеленый | Для внутренней отделки в помещениях с сухим, нормальным, влажным и мокрым режимами влажности |
| С увеличенной сопротивляемостью воздействию открытого огня ГКЛО | Серый/Розовый | Для внутренней отделки в пожароопасных помещениях |
| Влагостойкий с увеличенной сопротивляемостью открытого пламени ГКЛВО | Зеленый | Для внутренней отделки в пожароопасных помещениях с повышенной влажностью |
Также при подборе материала для монтажа двухуровневого потолка обращайте внимание на следующие моменты:
- габариты (чаще всего 250 см в длину и 120 см в ширину);
- тип боковой кромки (прямая, утоненная, полукруглая, закругленная);
- толщина листа (не более 9,5 мм).
Указанные размеры являются стандартными, но всегда можно заказать изготовление листов под заказ. В таком случае придется подождать, зато выполнять монтаж двухуровневого потолка будет куда удобнее и легче. Что же касается выбора типа боковой кромки, то опять по чисто практическим соображениям выбор полукруглой или утоненной кромки выглядит оптимальным: меньше нужно тратить времени на пост-обработку.
Самые популярные производители:
- Knauf (Германия);
- Gyproc (Финляндия);
- Lafarge (Франция);
- Rigips (Австрия);
- ОАО «Гипс» (Россия).
Это интересно: Обработка древесины антисептиком своими руками — освещаем все нюансы
Варианты последующей отделки гипсокартона
Конечно, сам по себе гипсокартон не представляет особой декоративной ценности. Его поверхность нуждается в последующей отделке, которую каждый может сделать своими руками. Тогда любой дом или квартира – впечатлят своим интерьером.
Покраска
Это довольно традиционный способ, который требует соблюдения некоторых правил:
На поверхность листов наносится грунтовка. Используют проникающие составы. Все стыки хорошо промазывают, оклеивая сеткой-серпянкой. Чтобы избежать растрескивания клеят стеклохолст
Важно не допускать стыковки этого материала на швах ГКЛ. Наносят слой шпаклевки
Используют гипсовые смеси. Стены тщательно шлифуют. Краску наносят после грунтования, в несколько слоев
Лучше это делать пульверизатором или валиком.
Обязательным условием покраски гипсокартона является предварительное шпаклевание поверхности
Наклейка обоев
Кажется, что своими руками можно клеить обои на этот материал сразу же, как только будут заделаны все стыки. Это обманчивое впечатление. Да, так сделать можно, а что потом? Захочется поменять интерьер в доме, начнут удалять со стен обои, и окажется, что вместе с ними сходит и защитное покрытие плит. И придется начинать дополнительную отделку, а то и менять участки конструкции.
Если в будущем планируется обновление интерьера, то поклейка обоев должна проводиться только на подготовленные стены
Поэтому поступают так:
- Оклеивают гипсокартон стеклохолстом. Дают просохнуть поверхности.
- Разводят шпатлевку до жидкой консистенции.
- Берут валик, пропитывают его в растворе.
- Быстрыми движениями начинают наносить смесь на стены. Наносят 3-4 слоя, каждый раз дожидаются высыхания предыдущего.
Создание фактурной поверхности
Для такой работы предусмотрено использование специальной штукатурки. Но, при желании, внутреннюю отделку стен в доме можно сделать обыкновенной шпаклевкой.
Декоративная штукатурка из шпаклевки
Соблюдается следующий порядок:
- Как и в предыдущем варианте – клеят стеклохолст. Перед этим лучше своими руками загрунтовать поверхность.
- Далее, накладывают слой шпатлевки, равный примерно 2-3 мм.
- А вот теперь самое сложное – создание разнообразного рельефа. Для этого подойдут любые подручные инструменты. Самое главное, это проявить фантазию и немного упорства. Делают так: наносят слой шпаклевки и сразу придают ему выбранную фактуру. Например, прикладывают плоский шпатель, немного прижимают и отрывают. Так, создается подобие скального рисунка.
- Стены грунтуют и красят.
Создание фактурной поверхности с помощью шпаклевки
Наклейка плитки
Кафель на гипсокартон клеить не так сложно, практически повторяется технология, которая используется и при работе с простыми стенами.
Укладка плитки на гипсокартонные стены
Итак:
- Работаю с уже подготовленными к отделке плитами ГКЛ (замазанными стыками). Но потребуется дополнительное нанесение еще одной смеси. А именно промазывают все швы, стыки, места расположения шурупов (саморезов) — раствором для наклейки плитки. В этом случае использовать стеклохолст – не нужно.
- От самой высокой точки пола отмеряют высоту плитки + пара миллиметров. Рисуют линию по всей стене дома. Вровень прикручивают рейку (профиль). То есть плитку укладывают со второго ряда.
- Далее, все как всегда: наносят смесь на листы ГКЛ, размазывают зубчатым шпателем. И начинают укладывать изделия, вставляя между ними специальные крестики.
- Когда все высохнет – затирают швы.
Гипсокартон является универсальным материалом, который можно использовать для выравнивания, а также декоративного оформления стен. Он поддается многочисленным видам отделки. Благодаря этому удастся получить полностью индивидуальный интерьер.
Можно ли крепить гипсокартон без обрешетки?
Все, что было описано выше (касаемо металлического профиля) – необходимо для создания каркаса. Конечно, это самый популярный вариант. Хотя, можно предложить совсем другое. А именно – крепить гипсокартон напрямую к стене.
Каждый, наверное, слышал о такой возможности, но использовать ее не решался. И действительно, потребуется соблюдение многочисленных нюансов, иначе получится «плавающая» конструкция. А также будут испорчены все материалы.
Монтаж гипсокартона на стены без обрешетки
Для чего прибегают к этому методу:
- Следует понимать, что обрешетка занимает значительное место. То есть получается, что часть помещения не будет использована. Это хорошо заметно, когда работы проводятся в небольших комнатах. И без того узкое пространство – становится похожим на спичечный коробок.
- Простое желание сделать работу быстрее. Да, не нужно делать каркас, листы буквально накладываются на стену.
- Экономия. Профиль стоит не так дешево, а когда приходится работать в частном доме, где много комнат, то его цена становится очень существенной.
В любом случае прибегать к бескаркасному методу нужно тогда, когда стены достаточно ровные или есть определенные навыки (знакомые, которые могут помочь).
Своими руками можно сделать самый простой вариант. Инструкция к нему такая:
- Удаляют со стены все лишнее.
- Укладывают на пол два деревянных бруса. Располагают их параллельно.
- На них кладут гипсокартон – фасадом к полу.
- Стену и тыльную строну плиты грунтуют.
- Дождавшись, когда все хорошо просохнет – готовят клеевую смесь. Ее точечно наносят на плиту ГКЛ.
- Лист поднимают и прижимают к стене, уровнем проверяют правильность установки.
- Ставят дополнительные подпорки, до того момента, пока клей не высохнет.
Вообще, существует еще один способ. В нем применяется монтажная пена. Но данный метод очень сложный, хотя и кажется, что его сделать еще проще. Дело в том, что рассчитать нужное количество пены – довольно затруднительно. Стоит немного переборщить и лист буквально может поломать. Лучше не делать это своими руками, если нет опыта.
Как правильно шпаклевать гипсокартон своими руками
Шпаклевка гипсокартона обычно производится с помощью широкого валика – так быстрее, да и обработанная поверхность будет выглядеть более однородной. Шпаклевку стоит проводить небольшими участками поверхности.
Состав наносится шпателем и выглаживается, после чего можно приступать к шпаклеванию следующего плоского участка.
Обработанную поверхность после её высыхания необходимо зачистить при помощи шлифовальной шкурки.
Некоторые особенности имеют место при шпаклевке углов помещения. Для отделки наружных углов понадобится металлический либо пластмассовый уголок, с помощью которого удастся сберечь углы от натёков и частиц шпаклёвочной смеси и одновременно облегчить сам процесс шпаклевки.
Для этого сначала отделочный материал необходимо нанести по обе стороны стыка, приложить к обрабатываемому сверху углу выбранной длины уголок, легонько вдавить его в слой шпаклевки и затем нанести ещё один слой рабочей смеси.
С целью снижения расхода смеси уголок следует брать потоньше, ведь его функция – только обозначить угол комнаты. При оформлении внутренних углов используется специальный шпатель.
Для окончательной обработки поверхности приобретается финишная шпаклевка – ее надо нанести шпателем на поверхность гипсокартона и равномерно распределить по ней.




































