Особенности эксплуатации
Автономная система канализации прослужит максимальный срок, если придерживаться рекомендаций специалистов и основных правил использования:
- Не бросать в канализацию крупный мусор;
- Хорошо утеплить и гидроизолировать систему;
- Регулярно откачивать из септика скопившуюся сточную жидкость;
- Избегать попадания жиров при помощи специальных жироуловителей;
- Не использовать химические средства в случае использования биоочистки стоков в камере септика.
Если к установке септика подойти ответственно, не пожалеть времени на составление проекта, выбор материалов, соблюдение правил эксплуатации — система автономной канализации будет функционировать без сбоев на протяжении долгих лет.
Статьи для Вас по теме:
Модели промышленного изготовления
Многочисленные отзывы позволяют выделить три актуальных септика для устройства слива вблизи грунтовых вод. Это:
Септик под названием «Танк» от производителя Тритон Пластик. Модель выполнена из пластика, имеет три секции в корпусе, где в первых двух очистка выполняется посредством перелива и отстаивания содержимого, а в третьей секции в ход вступают анаэробные бактерии.
«Крот». Он производится компанией Аква-Мастер. Этот вариант лучше подходит для обустройства с УГВ, поскольку корпус изначально защищен от всплытия, а конструкция подразумевает наличие биофильтра.
Септик Биотон Б. Такой вариант септика считается наиболее актуальным для работы с близким УГВ. Его конструкция включает не только биофильтр, но и имеет трехсекционную структуру. В одной из секций можно поместить канализационный насос для откачивания жидкости. Битон Б предполагает обустройство котлована с уклоном от периметра.
Шаг 4 Установили биостанцию
Муж заранее заказал в «Леруа Мерлен» цемент, трубы, обводы для них, клей и другие необходимые материалы. На все ушло 7664 Р.
Прежде чем опустить станцию в котлован, рабочие откачали накопившуюся в яме воду. Затем уложили на дно подушку из песка и цемента и утрамбовали ее виброплитой. Получилось ровное и прочное основание. На него вертикально установили станцию и обсыпали ее по периметру песчано-цементной смесью. Всего ушло 10 мешков цемента по 40 кг.
Когда стала просачиваться грунтовая вода, смесь схватилась и превратилась в бетон. Это позволило зацементировать корпус биостанции, чтобы грунтовые воды не выталкивали ее наружу.
Корпус станции от основания бака до горловины предварительно обмотали утеплителем — минватой толщиной 70 мм. Это нужно, чтобы зимой вода в биореакторе не замерзала.
Затем рабочие присоединили биостанцию к системе канализации и все закопали.
Так выглядел биореактор, когда его установили в котлован и произвели обратную засыпку. На этом этапе еще не установлен компрессор, снабжающий станцию кислородом, и дренажный насос для принудительной откачки очищенных стоков
В техническом паспорте ЛОС есть подробная схема подключения, но рабочие ей не пользовались. При желании с помощью этой схемы станцию можно установить самостоятельно
Все материалы для установки станции мы закупили предварительно в «Леруа Мерлен» и потратили 7664 Р. В процессе пришлось докупить расходники еще на 915 Р
Какие проблемы создает высокий уровень грунтовых вод
Высоким считается высота вод, залегающих на расстоянии 0,5-1 м от поверхности земли. При такой глубине залегания неизбежно появляются проблемы с канализацией, возникают сложности с ее обслуживанием.
- Затопление. Устройства, сложенные из кирпича или бетонных колец, часто затапливаются из-за движения грунтовых вод и пучения грунта. Отсутствие герметичности в таких установках облегчает проникновение жидкости внутрь, в результате чего объем стоков в устройстве быстро повышается. В лучшем случае хозяину домостроения приходится чаще вызывать машину для ассенизации, в худшем — стоки вперемежку с фекалиями могут попасть в канализацию и перетечь по ней в туалет и ванную. При переполнении устройства, его содержимое может попасть на участок и испортить почву.
- Всплытие. Накопление грунтовых вод при обильных осадках или таянии снега может вытолкнуть легкую пластиковую установку наверх, если она не была закреплена бетонной подушкой. В процессе выталкивания септик может накрениться, фекальные массы выплескиваются и попадают в почву. А при сдвиге сооружения может случиться прорыв канализации, владелец участка понесет незапланированные расходы на ее восстановление.
- Дренаж. По СНиП между грунтовыми водами и фильтрационным полем, процеживающим воду на последнем этапе очистки, должно быть не менее 1 м земляной прослойки. При высоком залегании грунтовых вод это условие просто невыполнимо, в итоге происходит загрязнение окрестных водоемов из-за поступающей в почву недостаточно очищенной воды.
- Разрушение. Грунтовые воды с повышенной кислотностью или щелочностью постепенно разрушают материал, из которого изготовлен септик, особенно бетон или кирпич. Кроме того, корпус или канализационные трубы могут быть повреждены острыми камушками, которые приносят движущиеся грунтовые воды.
- Сложный монтаж. При установке конструкции из-за накопления воды усложняется процесс рытья котлована и заливки бетонной подушки. Установка готовых очистителей становится более трудоемкой.
Какой септик лучше — лидер рейтингов
Конечно же,заводского изготовления.
- У готового изделия гарантия 100% герметичности. Самодельная конструкция может показать себя не с лучшей стороны.
- Септик промышленного изготовления оснащен системой фильтрации, которая отвечает требуемым санитарным нормам и хорошо справиться с возложенными на нее нагрузками.
- Изделия, приобретенные в магазинах, обладают высокой степенью защиты от механических (внешних) и химических (внутренних) воздействий. У конструкций, сделанных своими руками (септик для дачи без откачки), возможны, протечки нечистот в грунт.
Если вы не обладаете нужным опытом в данном вопросе, пригласите на участок специалиста.
Он проанализирует ситуацию и поможет подобрать подходящий вариант септика, именно, для вашего земельного надела.
Конструкция должна обладать следующими характеристиками:
- качественной герметизацией камер,
- прочным корпусом,
- иметь защиту от всплытия.
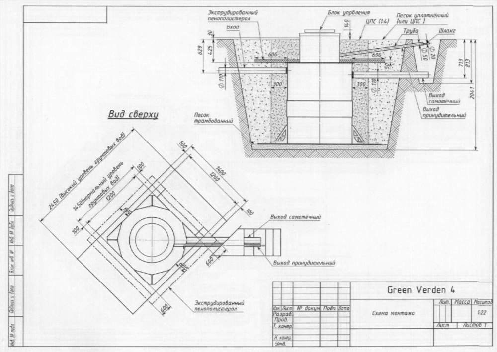
Биологическая очистная станция
В конце августа 2021 года наш сосед поставил на своем участке биологическую очистную станцию. Раньше он тоже каждый месяц откачивал ил и воду из колодца. Однажды сточные воды даже затекли в его дом. Мы с мужем решили понаблюдать, как будет работать станция соседа, и, если все будет хорошо, установить такую же.
В ЛОС сточные воды также проходят несколько этапов очистки, но, в отличие от обычного септика, в нем работают аэробные бактерии. Если есть кислород, они очищают стоки эффективнее, до 98—99%. Чтобы бактерии не погибли, специальный компрессор постоянно насыщает систему кислородом.
Есть два способа сбрасывать очищенную воду наружу.
Самотечный вариант, когда очищенная вода вытекает по трубе за счет перепада высот. Такой способ подходит, если грунтовые воды невысокие, а сам грунт хорошо впитывает влагу.
Принудительный сброс, когда сточная вода скапливается в камере и насос выкачивает эту воду по трубам — на участок, в канаву или в водоем. При высоких грунтовых водах производители ЛОС рекомендуют именно такой способ сброса.
Мы отметили для себя три плюса биологических станций очистки:
- Внутри ЛОС также со временем скапливается ил, но его можно откачивать реже, чем выгребную яму или септик. Производители рекомендуют откачивать ЛОС раз в год.
- За счет высокой эффективности очистки стоков вода на выходе из септика не пахнет и не загрязняет участок.
- Станцию можно устанавливать при высоких грунтовых водах: не понадобится поле фильтрации, сама емкость герметична и вода не попадет внутрь станции.
И три основных минуса таких станций:
- Она не может работать без электричества. Если отключить компрессор, который насыщает систему кислородом, колония аэробных бактерий погибнет.
- Очищенную воду нужно куда-то сливать. Правда, у нас такой проблемы нет: на участке есть небольшая канава.
- Сам биореактор и его установка стоят дороже, чем выгребная яма или септик. Но так как нам приходилось регулярно откачивать выгребную яму, за пять месяцев мы уже потратили порядка 50 тысяч рублей. Таким образом, биостанция быстро окупалась.
Расскажу, как мы выбирали очистную станцию и устанавливали ее на своем участке.
Почвенная система доочистки воды этапы реализации
Если на участке традиционный септик, обязательно проводят почвенную доочистку. Она выполняется в виде фильтрации или инфильтратора. Если УГВ высокий, то желателен второй вариант, но при правильном проведении подойдут и фильтрационные кассеты — это выйдет дешевле.
Монтаж:
- делают траншею;
- выравнивают и утрамбовывают дно;
- монтируют перфорированные трубы, через которые отводят очищенные стоки;
- засыпают фильтрующий слой, кладут сверху трубы для подведения осветленных стоков;
- свободное пространство засыпают щебнем, оборудуют вентиляцию;
- закрывают грунтом.
Средний срок службы — 15 лет, но при редкой эксплуатации может быть увеличен до 20 лет. Затем потребуется снова раскапывать траншею и заменять фильтр.
Особенности монтажа
Чтобы выгребная яма и септик работали исправно при высоком УГВ, необходимо соблюдать следующие правила:
- установка пластиковой или стеклопластиковой емкости должна производиться на бетонное основание, что позволит устранить возможность смещения конструкции и облегчит процесс якорения;
- емкость необходимо закрепить на основании хомутами, при помощи закладных или иным способом для предотвращения всплытия;

Установка и крепление
- перед засыпкой рекомендуется соорудить слой керамзита для защиты емкости от деформации и промерзания;
- для защиты емкости котлован можно оборудовать гидроизоляционным слоем;

Защита септика от грунтовых вод
- при засыпке котлована рекомендуется наполнить септик водой, что позволит предотвратить деформацию в ходе выполнения работы;
- участок целесообразнее оборудовать дренажной системой, позволяющей своевременно удалять избытки воды.
Подробнее о процессе установки септика при высоком расположении вод, а также о возможных проблемах и путях их решения, смотрите на видео.
Если самостоятельно выбрать или установить септик не получается, то работу лучше доверить профессиональным мастерам. Это позволит избежать проблем при эксплуатации оборудования.
Какой должна быть канализация при высоком уровне грунтовых вод
Многих владельцев загородных участков интересует, как обустроить систему отведения сточных вод для дачи. При ее строительстве нужно учесть массу моментов. Канализация при высоком уровне грунтовых вод должна быть сделана так, чтобы протечки были абсолютно исключены. Для этого используются силиконовые прокладки, приваривание труб к накопительной емкости
К тому же важно правильно заложить систему водоотведения, чтобы вам не приходилось постоянно откачивать накопительную емкость
Особенности строительства
Если на вашем дачном участке высокий уровень грунтовых вод, то можно столкнуться со следующими проблемами:
- разлив сточных вод по поверхности земли при большом залповом сбросе и во время сезонных паводков;
- возможно загрязнение грунта и источников водоснабжения;
- из-за недостаточной фильтрации стоков появляется неприятный запах.
Мастера предлагают использовать один из методов, чтобы не допустить перечисленных ситуаций.
- Вложить достаточно средств в строительство, установив биосептик и качественные трубы.
- Постоянно модернизировать систему. Это потребует больше вложений. Сократить затраты на обслуживание вы сможете, если все будете делать самостоятельно.
В условиях высокого залегания грунтовых вод можно использовать самые разные конструкции: биосептики, модели с механической очисткой и накопительные емкости. Последние обойдутся дешевле, но вам придется регулярно платить за их откачивание.
Как сделать выгребную яму
При высоком УГВ один их лучших вариантов автономной канализации – выгребная яма. Она представляет собой несколько бетонных колец, которые ставятся друг на друга и изолируются. Альтернативой им может стать пластиковая емкость, с люком в верхней части. Главные преимущества выгребной ямы – простота изготовления и низкая цена. При этом недостатки конструкции:
- при разгерметизации высока вероятность загрязнения питьевой воды;
- обязательно наличие свободного подъезда к сооружению;
- дополнительные расходы на откачку (она проводится раз в 2-4 месяца);
- при заполнении колодец (даже герметичный) будет издавать неприятный запах.
Если вы решили сделать именно такой вариант выгребной ямы, установите возле нее фильтрационные кассеты. Чтобы они работали круглый год, утеплите их. Сократить расходы на обслуживание можно при помощи двух колодцев. В них стоки будут скапливаться и фильтроваться. Во втором установите насос для перекачивания вод в придорожную канаву, которую нужно выкопать около участка.
Правила строительства выгребной ямы:
- Подготовьте два котлована и смонтируйте в них герметичные резервуары. Это могут быть бетонные кольца. Они устанавливаются друг на друга, крепятся раствором и изолируются с наружной стороны.
- Между собой резервуары соединяются трубой, еще одна магистраль прокладывается к тому. Запрещено устанавливать в них фильтрационные кассеты, так как это затруднит сток.
- В отдельной яме монтируется водозабор. Для этого в ней устанавливается фильтрационная кассета.
- Чтобы перекачивать дренированные воды, устанавливается насос, сток которого направляется на кассету.
Сократить затраты труда можно при помощи готовых пластиковых емкостей. Они легки в монтаже, но стоят достаточно дорого. Такие емкости нудно закрепить в котловане, иначе во время паводка они всплывут.
Особенности обустройства септика с механической очисткой
При залегании вод практически над поверхностью грунта, сделайте систему из резервуара, поделенного на 3 камеры. Специалисты рекомендуют монтировать конструкцию из колец с замками, пластиковых емкостей или заливать резервуар на месте
Важно, как и в первом случае, добиться максимальной герметичности
Монтаж незначительно отличается от первого случая. Заливка проводится при помощи опалубки, которая устанавливается так, чтобы получился бетонный куб с двумя перегородками. Принцип работы септика в следующем: стоки попадают в первую камеру, где отстаиваются тяжелые загрязнения. Затем во второй камере под действием бактерий проводится очистка от жира. В третьей части септика жидкость окончательно осветляется, затем перекачивается в фильтрационный тоннель. Он состоит из песчано-щебневой подушки и кассет для очистки, уложенных сверху. При высоком УГВ диаметр тоннеля не должен превышать 15 сантиметров.
Назначение
Септик, по сути, является комбинацией выгребной ямы и очистной установки, куда попадают сточные воды, образующиеся в процессе жизнедеятельности жителей частного домостроения. В результате использования туалета, ванной, стиральных и посудомоечных машин образуется большое количество стоков, которые должны быть утилизированы без вреда для окружающей среды.
Современные септики обеспечивают накопление, биологическую очистку, утилизацию сточных вод в два этапа:
- Загрязненные стоки попадают в первую камеру резервуара, где происходит их отстаивание и первичная очистка. Твердые тяжелые частицы быстро опускаются на дно, а очищенная от них вода поступает в следующую камеру.
- Во второй камере происходит разложение органических соединений, из которых состоят нечистоты, при помощи анаэробных микроорганизмов. Вода становится еще чище и попадает для окончательной очистки в третий резервуар или систему специальных фильтров.
Понимание принципа работы септика значительно облегчит владельцу загородного участка его выбор и монтаж.
Риски грунтовых вод
Грунтовым водами называют подземный водоносный слой, который расположен поблизости к поверхности земли. УГВ меняется, но не значительно – подниматься или опускаться в зависимости от сезона и количества осадков. Если уровень высокий возникает ряд проблем при обустройстве канализации и других работах связанных с разработкой почвы:
- Разрушение конструкции уличного туалета.
- Появление неприятного, застойного запаха.
- Риск развития кишечных инфекций, так как фекальные массы способны проникать в источники питьевой воды.
- Уменьшение срока эксплуатации труб, находящихся под землей, особенно если они металлические.
- Риск размытия стенок выгребной ямы.
- Если септик установлен не по нормам, возможно его выталкивание из земли при повышении УГВ.
- Талые воды способны просачиваться в выгребную яму и все эти стоки проливаются на участке, что становиться проблемой, в том числе экологической.
- Разрушение даже герметичной конструкции септика или ЛОС (локальная очистная станция), так как вода будет давить на стенки и тем самым образуются микротрещины.

Основные правила устройства при высоком УГВ
Септик, если грунтовые воды близко, должен быть полностью герметичным, дабы исключить просачивание стоков в почву. Конструкции из бетонных колец, кирпича и прочих сборных элементов не способны обеспечить должную герметичность – поэтому такие варианты должны отпасть еще на этапе теоретических размышлений об устройстве канализации. В идеале желательно прибегнуть к установке септика промышленного производства. На рынке присутствует широкий ассортимент данных устройств, обладающих различным объемом. Стоит знать, что объем септика должен быть равен трехсуточному объему потребления воды людьми, проживающими в доме.
Изучив различные модели септиков от разных производителей, вы убедитесь, что на сегодняшний день можно без труда приобрести как компактную конструкцию для маленькой дачи, так и многокамерную установку, рассчитанную на современный коттедж.
Трехкамерный фабричный септик – это пластиковая емкость, разделенная на камеры. Первая камера – место отстаивания и разделения стоков на фракции. Вторая и третья предназначаются для доочистки стоков. Вместо фильтрующих колодцев в таких конструкциях применяются инфильтраторы – они обеспечивают быстрое впитывание в почву на 94-98% очищенной воды. Основным недостатком инфильтраторов является большая занимаемая ими площадь. Сам же промышленный септик, безусловно, довольно дорог. Однако такое капиталовложение никак нельзя назвать излишеством или прихотью. Качественный септик при высоких грунтовых водах – это жизненно важная необходимость.
При ограниченности в средствах можно соорудить септик самостоятельно – из подходящих пластиковых емкостей, к примеру, из еврокубов и сконструировать фильтрационный колодец. Между собой емкости необходимо соединить специальными трубами для перетекания стоков.

Если промышленные решения в силу тех или иных причин вас не устраивают, вы всегда можете соорудить септик своими руками
Обустраивая септик в местности с высоким УГВ, нужно обязательно предусмотреть под конструкцией железобетонную подушку. Прикрепив конструкцию к такому основанию, можно будет не беспокоиться о том, что ее вытолкнет из почвы.
Также неплохим вариантом устройства септика при высоком уровне грунтовых вод является установка монолитного железобетонного колодца. Благодаря отсутствию швов проникновение стоков в грунт будет невозможным. Порядок работ при этом будет таковым:
- рытье котлована;
- монтаж опалубки;
- установка арматуры;
- заливка бетона.
Бетонную смесь желательно предварительно сдобрить гидрофобной присадкой – это позволит повысить гидроизоляционные свойства будущей конструкции. В перегородках между камерами должны быть предусмотрены переливные отверстия. Внутри готовые камеры необходимо обязательно обработать обмазочной гидроизоляцией. При желании подобный септик можно соорудить самостоятельно, без привлечения специалистов. Достаточно правильно спланировать свою работу и учесть все нюансы.
Характеристики почвы, учитываемые при расчетах
При расчете параметров приобретаемого септика следует учитывать особенности грунта, в который септик будет отводить переработанные стоки. Упущение любого фактора может привести впоследствии к неработоспособности всей
системы.
- Тип грунта.
- Способность грунта пропускать воду.
- Глубина промерзания грунта.
Некоторые виды септиков изначально нацелены на использование в песчаном грунте. Как правило, такие установки характеризуются невысоким уровнем очистки и подразумевают относительную отдаленность грунтовых вод в месте использования. Песок обеспечивает высокую пропускную способность. Также в песчаном грунте вероятность плохо переработанных отходов не так быстро вызывает заиливание. Использовать такой септик для глинистой почвы нельзя, так как глина обладает низкой пропускной способностью. Стоки могут выйти на поверхность рельефа и затопить участок. Если единственный возможный вариант – это отвод воды из септика при глинистом грунте, тогда применение дополнительных мер неизбежно.
Помимо глобальных улучшений всей системы, можно воспользоваться недорогим и эффективным решением, установив на выход из системы фильтр для септика, тем самым уменьшая риск заиливания почвы. Такой фильтр целесообразно применять как для грунта с низкой пропускной способностью, так и для септиков, отводящих стоки при помощи аэрационных полей. Фильтр задерживает частицы, оставшиеся в воде, и тем самым существенно уменьшает интенсивность заиливания почвы. В случае использования фильтрующих полей, фильтр помогает избежать быстрого забивания дренажных труб.
Если участок характеризуется большими объемами стоков, и септик используется круглый год, использование тех же фильтрационных полей ограничено при низких температурах. Замерзание приводит к серьезному загрязнению окружающей среды. Высокая влажность грунта также накладывает определенные ограничения на отвод стоков.
Септик для дачи с высокими грунтовыми водами
Наземный септик
Такой вариант обойдется вам не так дорого. Сэкономить удастся не только на самом оборудовании, но и на его установке. Вам не придется рыть котлован, чтобы поместить туда корпус, обустраивать для него бетонные подушки и укладывать теплоизоляцию. К тому же, речь идет про накопительный септик, а он имеет всего одну емкость, соответственно, стоит дешевле. На российском рынке, можно посмотреть в сторону марки «Тритон».
Такой однокамерный септик подойдет для наземной установки
Но в этом случае есть не только преимущества. Вам нужно учесть и тот факт, что конструкция будет занимать достаточно много места на участке. При этом эстетические ее характеристики находятся не на высоких показателях. Плюс ко всему, вам придется регулярно пользоваться услугами ассенизаторской машины, за которые нужно платить.
Подойдет такой септик для дачи с высокими грунтовыми водами, где вы бываете только периодически. Так очистку контейнера нужно будет проводить очень редко, поэтому особых проблем эта процедура не доставит.
Пластиковый септик заводского производства
Главный критерий, которому должен соответствовать септик – это герметичность. Если говорить о пластиковых контейнерах, которые изготавливают в заводских условиях, то они полностью соответствуют этому требованию. Устанавливая на участке пластиковый септик, вы получаете полную уверенность в том, что стоки никоим образом не смогут просочиться в грунт, пока не пройдут процедуру полной очистки.
Обратите внимание! Для участка с высокими грунтовыми водами следует приобретать трех камерный септик. В первой камере стоки будут проходить процедуру первичной очистки, а во второй и третей будет выполняться их доочистка. При этом вместо фильтрующего колодца следует устанавливать инфильтратор – он сможет обеспечить быстрое впитывание в грунт практически полностью очищенной воды
При этом вместо фильтрующего колодца следует устанавливать инфильтратор – он сможет обеспечить быстрое впитывание в грунт практически полностью очищенной воды
При этом вместо фильтрующего колодца следует устанавливать инфильтратор – он сможет обеспечить быстрое впитывание в грунт практически полностью очищенной воды.
Пластиковый трехкамерный септик для дачи с высоким уровнем грунтовых вод
Можно выбрать среди марок производителей : «Топас», септик Танк, «Юнилос». Единственное, что может смутить в этом случае – цена обустройства септика. Сама по себе конструкция стоит достаточно дорого, да и ее установка будет недешевой. Придется вырыть большой котлован, чтобы разместить в нем все три емкости. Но на этом работа по установке не заканчивается.
Вам следует позаботиться о том, чтобы грунтовые воды не вытолкнули септик на поверхность. Это приведет не только к необходимости в повторной его установке, но и спровоцирует нарушение работы всей канализационной системы, загрязнение участка стоками.
Особое внимание обратите на закрепление септика. Для этого внизу котлована нужно обустроить бетонную подушку, а сам септик прикрепить к ней при помощи ремней, троса или любого другого подходящего изделия. Так вы будете полностью уверены в том, что емкости надежно закреплены на своем месте, не поменяют расположение со временем эксплуатации
Так вы будете полностью уверены в том, что емкости надежно закреплены на своем месте, не поменяют расположение со временем эксплуатации
Так вы будете полностью уверены в том, что емкости надежно закреплены на своем месте, не поменяют расположение со временем эксплуатации.
Шаг 3 Выкопали траншеи для сточных труб
Траншею для трубы, по которой очищенная вода откачивается в канаву, муж и мой папа выкопали сами. Трубы уложили под углом примерно 35 градусов и на глубину 30 см.
Прораб, который помогал устанавливать ЛОС, сказал, что трубы можно не утеплять и не укладывать ниже уровня промерзания: угол наклона достаточный, чтобы вода в них не задерживалась. Эта зима прошла благополучно: наши трубы не замерзли. Однако, если хотите перестраховаться, трубы лучше утеплить.
Труба, по которой очищенные стоки принудительно выкачиваются в канаву. Мы сэкономили деньги на том, что выкопали траншеи и положили трубы своими силами
Чтобы установить станцию и подключить ее, мы наняли бригаду из трех человек, заплатили им 25 000 Р. Они также проложили канализационную трубу между домом и станцией. Дело в том, что старая труба шла на дно выгребной ямы. А узел, где канализационная труба подключается к биореактору, находится в его верхней части — в горловине. Если бы мы подключили ЛОС к старому выводу канализации, станцию пришлось бы утопить в землю на 3 м, а это невозможно из-за высоких грунтовых вод. Поэтому канализационную трубу проложили заново — ближе к поверхности земли.
Когда рабочие сделали небольшой подкоп под фундамент, чтобы найти оголовок канализационной трубы, выходящей из дома, они уперлись в бетон. Оказалось, что при заливке ленточного фундамента внутренняя часть опалубки деформировалась и бетон растекся.
Муж вызвал специалиста, который просверлил бетон машиной алмазного бурения. За это мы заплатили 6500 Р. А еще пришлось разобрать технический короб в туалете, снять унитаз, душевую кабину и часть плитки на полу.
Рабочие сказали, что не хватает труб и еще некоторых стройматериалов. Пришлось докупать в местном строительном гипермаркете «Мегастрой» — ушло еще 915 Р.
Пришлось разбирать короб в туалете, чтобы соединить внутреннюю канализационную систему с внешней. Из-за дополнительных работ рабочие не успели вернуть все на место в тот же день — сделали на следующий. Хорошо, что у нас есть туалет и ванная на втором этаже, которыми можно было пользоваться
Место, где котлован соединяется с канализационной трубой из дома. На фото видно, сколько воды в яме набралось за сутки
Септик для дачи «под ключ» — рейтинг
В многообразии возможных септиков и их вариаций, очень сложно бывает выбрать какую же систему лучше всего установить в своем загородном доме.
В первую очередь, стоит определить какой принцип работы вам больше подходит из 2 категорий, энергонезависимый или энергозависимый, после чего выбирать лучшего из этой категории.
В данном рейтинге представлены отдельно лучшие энергонезависимые модели и отдельно лучшие энергозависимые.
Прежде чем определиться, проверьте какой уровень грунтовых вод на вашем участке, нет ли поблизости водоохранных объектов, хватит ли на участке места для устройства дополнительной фильтрации стоков.
Это все критерии, по которым определяется возможность установки энергонезависимого септика, если по этим критериям вам этот вариант не подходит, то выбирайте сразу из группы энергозависимых септиков.
Канализация для болотистой местности
Лучший септик на болотистой местности характеризуется повышенным уровнем герметичности. Пользователь должен установить его в буквальном смысле с ювелирной точностью, канализационная система дома не справится с поставленными задачами. Если сделать что-то нет так, как это указано в инструкции, то возникнут 2 типа проблем – всплытие или затопление конструкции. Для того чтобы близко расположенные грунтовые воды на болотистой местности не поставили крест на всем проекте, нужно тщательно закрепить септик на основании. Для этого выбирается бетонный тип покрытия.
Даже незначительная погрешность на этом этапе приведет к всплытию. Не обязательно ждать ливня. Даже при незначительном повышении УГВ вся система перестанет справляться с поставленными задачами. Практически сразу на участке происходит частичная деформация отдельных элементов канализационной системы.
Перед монтажом септика его нужно тщательно осмотреть на наличие повреждений
Помимо этого, инженеры рекомендуют обратить внимание на следующие детали:
- Недостаточная прочность корпуса септика приведет к тому, что со временем в него просочатся сточные воды;
- Снизить вероятность возникновения локальной экологической катастрофы поможет соблюдение расстояний, рекомендованных местным природоохранным ведомством;
- Необходимо регулярно проверять герметичность водопроводных стыков, иначе повышается риск затопления;
- Неправильный выбор фильтра приведет к ускоренному появлению отложений на внутренней стороне трубопровода;
- Материал труб подбирается с учетом химического состава образующихся стоков.
Эффективность работы системы, не говоря уже о ее долговечности, определяется на этапе выбора расходных материалов. Здесь нужно учесть фактические условия эксплуатации. Септик и способ его монтажа выбирается с учетом УГВ и физико-химических характеристик стоков. Сам септик должен быть максимально герметичен.





































